Excelente Esquina de Categoría. con Cochera.

Apartamento · 7 ambientes · 4 dormitorios · 3 baños · 247 m²

Callao al 1500 y Vicente López, Recoleta, Capital Federal
USD 800.000
+ $ 1.500.000 expensas
En venta

Características principales de la propiedad

Tipo

Apartamento

Dormitorios

4

Baños

3

Ambientes

7

Área Total

247

Área Cubierta

222

Antigüedad

70 años

Publicado

27 de enero de 2025

Descripción

Espectacular departamento en edificio clásico de excelente categoría. Impactante hall de entrada. Excelente plano en esquina luminoso en todos sus ambientes. Palier privado. Hall de recepción importante. Living y Comedor con salida a balcón. Escritorio. 4 Dormitorios . El dormitorio principal se ub...

Características

Seguridad 24hsCocheraBalcon

Ubicación

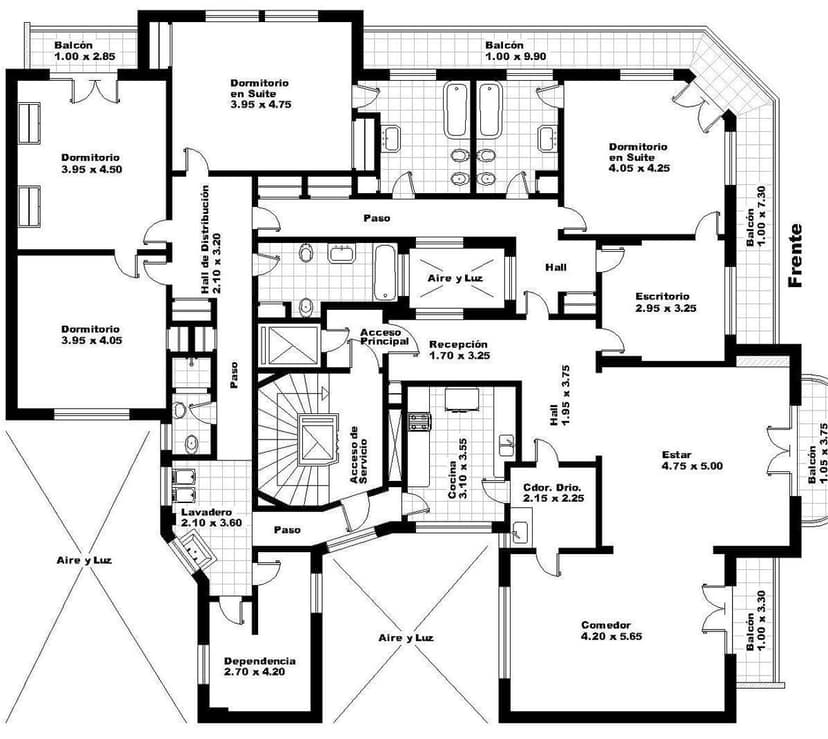
Planos

Plano 1

Análisis de mercado

Información del agente

Izrastzoff

Izrastzoff

¿Sos de esta inmobiliaria?

Reclamá tu perfil gratis y conseguí más leads calificados con IA. Sin comisiones, sin límites.

Conocer más

Información sobre los datos

Los derechos de los datos de esta propiedad pertenecen a la inmobiliaria correspondiente. Roomix utiliza múltiples fuentes de portales inmobiliarios como ZonaProp, Argenprop, Mercado Libre y otros para indexar y mostrar propiedades disponibles en Argentina. Esta información se presenta únicamente con fines informativos y de búsqueda.

Propiedades cercanas

Propiedades similares