Oportunidad Inversión Monoambiente Villa Pueyrredón

Apartamento · 1 baños · 40 m²

Mosconi al 2500, Villa Pueyrredón, Capital Federal
USD 71.355
En venta

Características principales de la propiedad

Tipo

Apartamento

Dormitorios

0

Baños

1

Ambientes

0

Área Total

40

Área Cubierta

36

Antigüedad

0 años

Publicado

12 de octubre de 2025

Descripción

Oportunidad de Inversión - Monoambiente en Vila Pueyrredón Edificio Alteia Mosconi, un desarrollo pensado para quienes valoran el diseño, la calidad y la vida en barrio. Edificio de 9 pisos y una gran variedad de unidades (onoambientes, tres ambientes y dúplex). Ambientes amplios, funcionales y lum...

Características

Vista al frenteBauleraCocheraCerca de transporte publicoCon expensasApto creditoAmplio living

Ubicación

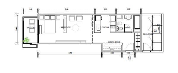
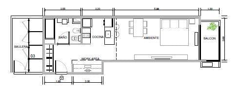
Planos

Plano 1
Plano 2
Plano 3

Análisis de mercado

Información del agente

PICCARDO PROPIEDADES

PICCARDO PROPIEDADES

¿Sos de esta inmobiliaria?

Reclamá tu perfil gratis y conseguí más leads calificados con IA. Sin comisiones, sin límites.

Conocer más

Información sobre los datos

Los derechos de los datos de esta propiedad pertenecen a la inmobiliaria correspondiente. Roomix utiliza múltiples fuentes de portales inmobiliarios como ZonaProp, Argenprop, Mercado Libre y otros para indexar y mostrar propiedades disponibles en Argentina. Esta información se presenta únicamente con fines informativos y de búsqueda.

Propiedades cercanas

Propiedades similares