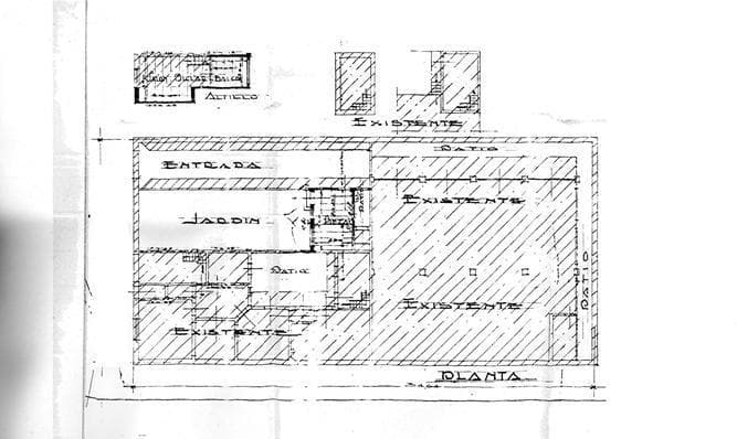
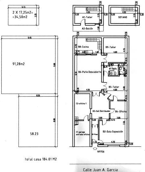
Lote 17.32 X 34 Usab 2 Oportunidad Única con Galpón en Venta en Paternal!

Depósito · 10 ambientes · 6 baños · 1080 m²

Juan Agustin Garcia 1150, La Paternal, Capital Federal
USD 695.000
0
En venta

Características principales de la propiedad

Tipo

Depósito

Dormitorios

0

Baños

6

Ambientes

10

Área Total

1080

Área Cubierta

1080

Antigüedad

60 años

Publicado

30 de marzo de 2023

Descripción

Oportunidad Única - Lote Doble Frente con Galpón en Dos Plantas y Viviendas/Oficinas en Venta en Paternal Descripción: En venta, esta propiedad ofrece una oportunidad única para inversores y emprendedores. El lote cuenta con una amplia superficie de 17.32 metros de frente por 34 metros de fondo, con...

Características

Apto profesional

Ubicación

Planos

Plano 1
Plano 2
Plano 3
Plano 4
Plano 5

Análisis de mercado

Información del agente

I

Inmobiliaria

¿Sos de esta inmobiliaria?

Reclamá tu perfil gratis y conseguí más leads calificados con IA. Sin comisiones, sin límites.

Conocer más

Información sobre los datos

Los derechos de los datos de esta propiedad pertenecen a la inmobiliaria correspondiente. Roomix utiliza múltiples fuentes de portales inmobiliarios como ZonaProp, Argenprop, Mercado Libre y otros para indexar y mostrar propiedades disponibles en Argentina. Esta información se presenta únicamente con fines informativos y de búsqueda.

Propiedades cercanas

Propiedades similares