Av Córdoba 2057 - Excelente Edificio de 15 Pisos + Gran Local - 40 Cocheras

Edificio · 1 ambientes · 11156 m²

Av. Córdoba 2057, Balvanera, Capital Federal
USD 15.000.000
0
En venta

Características principales de la propiedad

Tipo

Edificio

Dormitorios

0

Baños

0

Ambientes

1

Área Total

11156

Área Cubierta

11156

Antigüedad

20 años

Publicado

28 de noviembre de 2023

Descripción

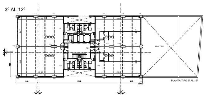
Ubicado en diagonal a la universidad de ciencias económicas. Excelente edificio de 18 plantas: Subsuelo / Planta Baja / Entrepiso / 1° a 15°. - Local a la calle en PB de 200m2. 14 pisos de 200 metros de frente y 200 metros contrafrente. 40 cocheras Superficie propia total: 9.535m2. Superficie común...

Características

Apto para mascotasCerca de transporte publicoSeguridad 24hsAccesible para personas con movilidad reducidaIdeal para alquiler

Ubicación

Planos

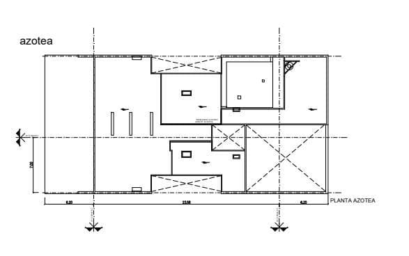
Plano 1
Plano 2
Plano 3
Plano 4
Plano 5

Análisis de mercado

Información del agente

I

Inmobiliaria

¿Sos de esta inmobiliaria?

Reclamá tu perfil gratis y conseguí más leads calificados con IA. Sin comisiones, sin límites.

Conocer más

Información sobre los datos

Los derechos de los datos de esta propiedad pertenecen a la inmobiliaria correspondiente. Roomix utiliza múltiples fuentes de portales inmobiliarios como ZonaProp, Argenprop, Mercado Libre y otros para indexar y mostrar propiedades disponibles en Argentina. Esta información se presenta únicamente con fines informativos y de búsqueda.

Propiedades cercanas

Propiedades similares