Complejo 10 U. F - Tucuman 4419 - Costa Azul

Edificio · 3 ambientes · 2 dormitorios · 1 baños · 50 m²

Tucuman 4400, Costa Azul, Buenos Aires Costa Atlántica
USD 30.000
0
En venta

Características principales de la propiedad

Tipo

Edificio

Dormitorios

2

Baños

1

Ambientes

3

Área Total

50

Área Cubierta

50

Publicado

14 de diciembre de 2024

Descripción

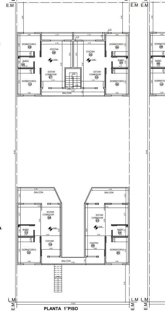
COMPLEJO 10 UNIDADES FUNCIONALESUBICADO EN TUCUMAN 4419 ENTRE BELGRANO Y DUHAU AL LIMITE DE LA LUCILA DEL MAR ENTREGA 12/2025LOS DEPARTAMENTOS SON DE 3 AMBIENTES C/U VALORES Y UNIDADES DISPONIBLESFRENTE PLANTA BAJA- U$D34.000PRIMER PISO- U$D32.000FONDOPLANTA BAJA- U$D36.000PRIMER PÍSO- U$D33.000SEGU...

Características

No apto para estudiantesCon expensasPapeles al dia

Ubicación

Planos

Plano 1
Plano 2
Plano 3
Plano 4
Plano 5

Análisis de mercado

Información del agente

I

Inmobiliaria

¿Sos de esta inmobiliaria?

Reclamá tu perfil gratis y conseguí más leads calificados con IA. Sin comisiones, sin límites.

Conocer más

Información sobre los datos

Los derechos de los datos de esta propiedad pertenecen a la inmobiliaria correspondiente. Roomix utiliza múltiples fuentes de portales inmobiliarios como ZonaProp, Argenprop, Mercado Libre y otros para indexar y mostrar propiedades disponibles en Argentina. Esta información se presenta únicamente con fines informativos y de búsqueda.

Propiedades cercanas

Propiedades similares