Local en Venta o Alquiler en Caballito

Local Comercial · 1 ambientes · 2 baños · 302 m²

Jose María Moreno al 200, Caballito, Capital Federal
USD 5.500
+ $ 600.000 expensas
En alquiler

Características principales de la propiedad

Tipo

Local Comercial

Dormitorios

0

Baños

2

Ambientes

1

Área Total

302

Área Cubierta

302

Publicado

28 de octubre de 2024

Descripción

Local ubicado en la planta baja de un edificio dividido en propiedad horizontal en el barrio de Caballito a una cuadra y media de Av Rivadavia.Muy buenos accesos vehiculares por su proximidad a importantes avenidas tales como Av Rivadavia, Av La Plata y Av Juan B Alberdi. El local se encuentra a una...

Características

Apto profesionalCerca de transporte publicoEn barrio privado

Ubicación

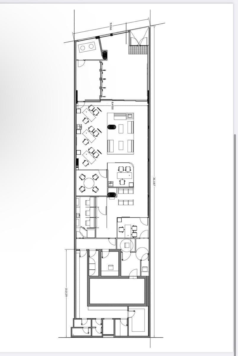
Planos

Plano 1

Información del agente

BRIDGE ARGENTINA

BRIDGE ARGENTINA

¿Sos de esta inmobiliaria?

Reclamá tu perfil gratis y conseguí más leads calificados con IA. Sin comisiones, sin límites.

Conocer más

Información sobre los datos

Los derechos de los datos de esta propiedad pertenecen a la inmobiliaria correspondiente. Roomix utiliza múltiples fuentes de portales inmobiliarios como ZonaProp, Argenprop, Mercado Libre y otros para indexar y mostrar propiedades disponibles en Argentina. Esta información se presenta únicamente con fines informativos y de búsqueda.

Propiedades cercanas

Propiedades similares