Espectacular Local Comercial en Edificio de Categoria

Local Comercial · 1 ambientes · 4 baños · 866 m²

Sarmiento 400, Centro / Microcentro, Capital Federal
USD 720.000
0
En venta

Características principales de la propiedad

Tipo

Local Comercial

Dormitorios

0

Baños

4

Ambientes

1

Área Total

866

Área Cubierta

866

Antigüedad

40 años

Publicado

22 de julio de 2024

Descripción

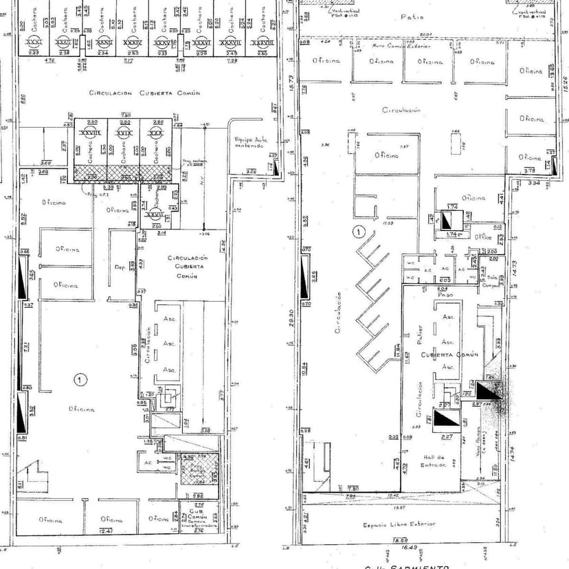
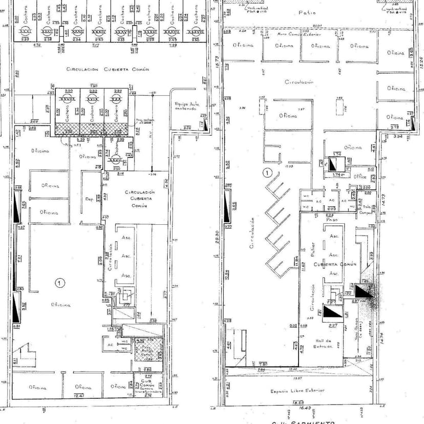
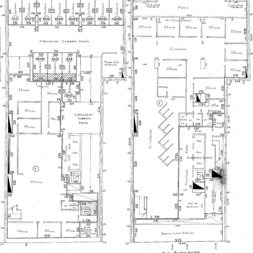
Gran Local comercial en edificio de categoria del Microcentro.En 866 metros en dos plantas de los cuales 570 están en planta baja y 296 en subsuelo. Gran escalera de acceso al SS, escalera de servicio, 4 baños, cocina. 2 cocheras cubiertas.El inmueble esta en muy buen estado es perfecto para bancos...

Características

Cochera

Ubicación

Planos

Plano 1
Plano 2
Plano 3

Análisis de mercado

Información del agente

P

Pablo

¿Sos de esta inmobiliaria?

Reclamá tu perfil gratis y conseguí más leads calificados con IA. Sin comisiones, sin límites.

Conocer más

Información sobre los datos

Los derechos de los datos de esta propiedad pertenecen a la inmobiliaria correspondiente. Roomix utiliza múltiples fuentes de portales inmobiliarios como ZonaProp, Argenprop, Mercado Libre y otros para indexar y mostrar propiedades disponibles en Argentina. Esta información se presenta únicamente con fines informativos y de búsqueda.

Propiedades cercanas

Propiedades similares