Local en Docks de Puerto. Tigre

Local Comercial · 1 ambientes · 143 m²

Docks del Puerto Guareschi y Río Luján Tigre, Dique Luján, Tigre
USD 450.000
0
En venta

Características principales de la propiedad

Tipo

Local Comercial

Dormitorios

0

Baños

0

Ambientes

1

Área Total

143

Área Cubierta

143

Publicado

15 de abril de 2025

Descripción

Local comercial en Docks del Puerto .Docks del Puerto es un paseo comercial a cielo abierto ubicado en el Puerto de Frutos con locales comerciales, gastronómicos y de entretenimiento.Se encuentra ubicado sobre la calle Guareschi y Río Luján complementándose con el Puerto de Frutos, se caracteriza po...

Características

No apto para estudiantesNo apto para mascotasCerca de transporte publicoAmplio livingCerca de zona gastronomica

Ubicación

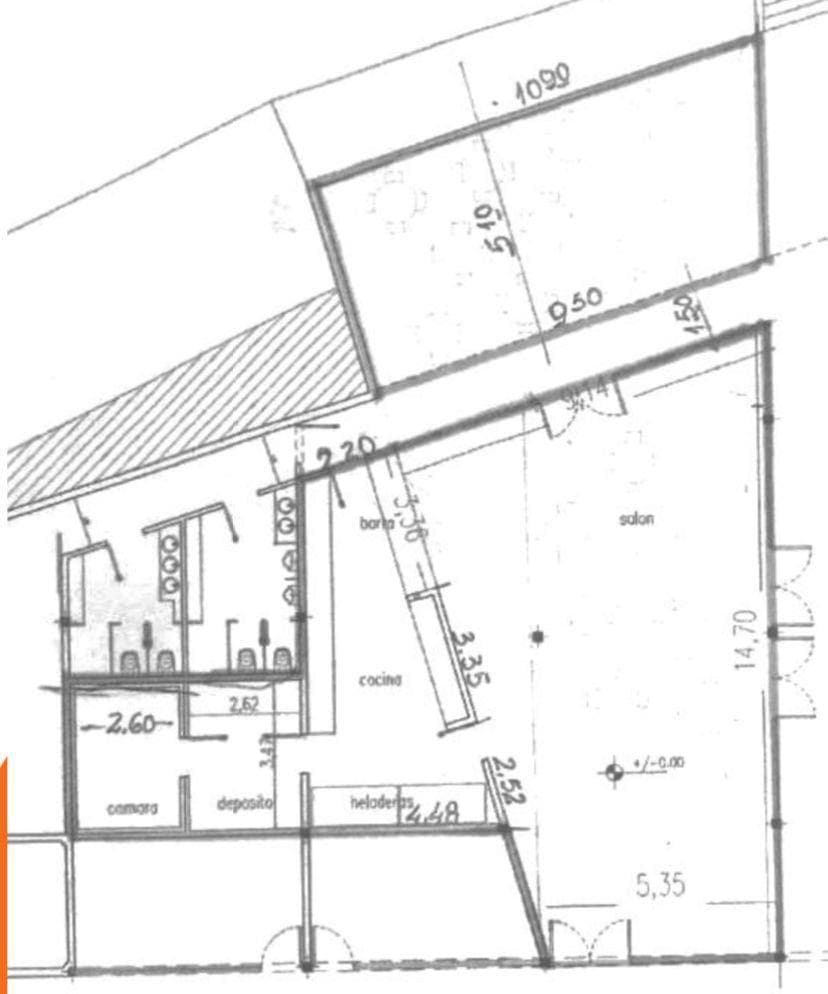
Planos

Plano 1

Análisis de mercado

Información del agente

I

Inmobiliaria

¿Sos de esta inmobiliaria?

Reclamá tu perfil gratis y conseguí más leads calificados con IA. Sin comisiones, sin límites.

Conocer más

Información sobre los datos

Los derechos de los datos de esta propiedad pertenecen a la inmobiliaria correspondiente. Roomix utiliza múltiples fuentes de portales inmobiliarios como ZonaProp, Argenprop, Mercado Libre y otros para indexar y mostrar propiedades disponibles en Argentina. Esta información se presenta únicamente con fines informativos y de búsqueda.

Propiedades cercanas

Propiedades similares