Local en Venta con Ubicacion Estrategica Para Comercio - Cafeteria, Cerveceria, Bar - Monserrat

Local Comercial · 1 ambientes · 200 m²

Bolivar al 200, Monserrat, Capital Federal
USD 600.000
0
En venta

Características principales de la propiedad

Tipo

Local Comercial

Dormitorios

0

Baños

0

Ambientes

1

Área Total

200

Área Cubierta

200

Publicado

11 de noviembre de 2024

Descripción

Local de 200 m² en zona estratégica, ideal para cafetería, restaurante, bar o cerveceríaEntrega estimada: Junio 2025Ubicado en una de las zonas más dinámicas y transitadas de Buenos Aires, este amplio local de 200 m² ofrece una excelente oportunidad para emprendedores e inversores que buscan estable...

Características

Ideal para alquilerCerca de zona gastronomica

Ubicación

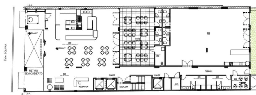
Planos

Plano 1

Análisis de mercado

Información del agente

I

Inmobiliaria

¿Sos de esta inmobiliaria?

Reclamá tu perfil gratis y conseguí más leads calificados con IA. Sin comisiones, sin límites.

Conocer más

Información sobre los datos

Los derechos de los datos de esta propiedad pertenecen a la inmobiliaria correspondiente. Roomix utiliza múltiples fuentes de portales inmobiliarios como ZonaProp, Argenprop, Mercado Libre y otros para indexar y mostrar propiedades disponibles en Argentina. Esta información se presenta únicamente con fines informativos y de búsqueda.

Propiedades cercanas

Propiedades similares