Local en Venta en Palermo, Capital Federal, Buenos Aires

Local Comercial · 1 ambientes · 200 m²

Thames 1300, Palermo, Capital Federal
USD 825.000
0
En venta

Características principales de la propiedad

Tipo

Local Comercial

Dormitorios

0

Baños

0

Ambientes

1

Área Total

200

Publicado

18 de diciembre de 2024

Descripción

SE VENDE RENTA U$S 5000 INICIO CONTRATO ENERO 2025 RUBRO GASTRONOMIALOCAL A ESTRENAR THAMES Y CABRERA10 X 15 + 1P 200 M2APTO TODO RUBROTIRAJE 4 VIENTOS EXPENSAS DIFERENCIADAS

Características

A estrenarCon expensasApto profesional

Ubicación

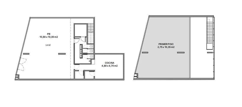
Planos

Plano 1

Análisis de mercado

Historial de Precios

Evolución del precio desde la publicación original

USD 825.000
Precio actual
Esta propiedad subió un 4.4% su precio desde que se publicó
18 dic - 25 sept
+USD 35.000(+4.4%)
Precio Original
USD 790.000
Precio Actual
USD 825.000
Cambios de Precio
2

Información del agente

BTS PROPIEDADES

BTS PROPIEDADES

¿Sos de esta inmobiliaria?

Reclamá tu perfil gratis y conseguí más leads calificados con IA. Sin comisiones, sin límites.

Conocer más

Información sobre los datos

Los derechos de los datos de esta propiedad pertenecen a la inmobiliaria correspondiente. Roomix utiliza múltiples fuentes de portales inmobiliarios como ZonaProp, Argenprop, Mercado Libre y otros para indexar y mostrar propiedades disponibles en Argentina. Esta información se presenta únicamente con fines informativos y de búsqueda.

Propiedades cercanas

Propiedades similares