Excelente Local en Parque Ptricios

Local Comercial · 1 ambientes · 2 baños · 507 m²

Av. Almafuerte al 100, Parque Patricios, Capital Federal
$ 5.000.000
0
En alquiler

Características principales de la propiedad

Tipo

Local Comercial

Dormitorios

0

Baños

2

Ambientes

1

Área Total

507

Área Cubierta

507

Antigüedad

1 año

Publicado

5 de noviembre de 2024

Descripción

Local de doble altura, con altura libre útil en interior de 5 metros. Carpinterías de aluminio de piso a techo en aluminio anodizado. APTO GASTRONOMICO. Carpeta preparada para recibir solado. Núcleos sanitarios completos para ambos sexos y para personas con movilidad reducida. Cielorrasos de hormigó...

Características

Apto profesionalAccesible para personas con movilidad reducida

Ubicación

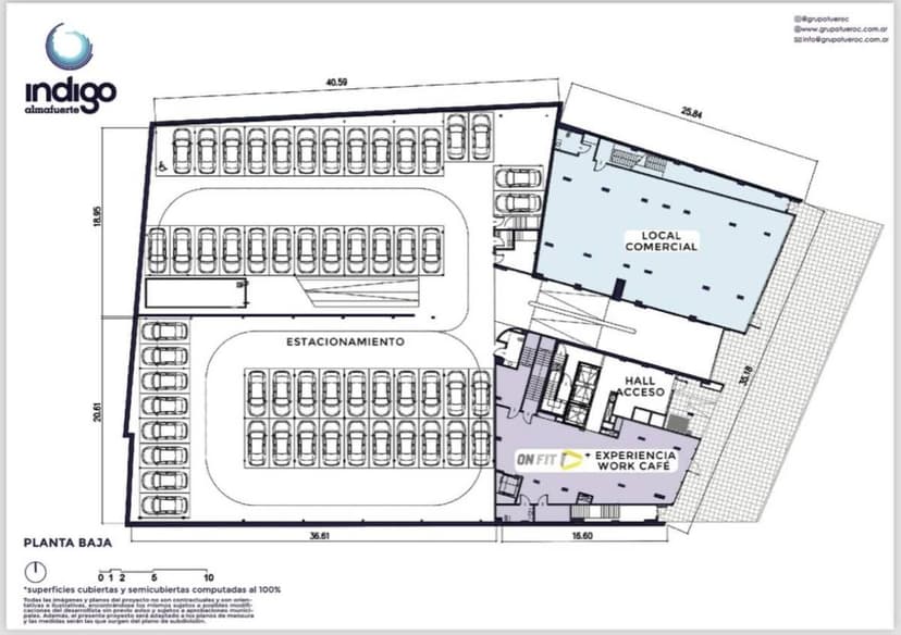
Planos

Plano 1
Plano 2
Plano 3
Plano 4

Información del agente

I

Inmobiliaria

¿Sos de esta inmobiliaria?

Reclamá tu perfil gratis y conseguí más leads calificados con IA. Sin comisiones, sin límites.

Conocer más

Información sobre los datos

Los derechos de los datos de esta propiedad pertenecen a la inmobiliaria correspondiente. Roomix utiliza múltiples fuentes de portales inmobiliarios como ZonaProp, Argenprop, Mercado Libre y otros para indexar y mostrar propiedades disponibles en Argentina. Esta información se presenta únicamente con fines informativos y de búsqueda.

Propiedades cercanas

Propiedades similares