LOCAL EN ALQUILER EN SAN TELMO

Local Comercial · 1 ambientes · 464 m²

Cochabamba 360 | SAN Telmo, San Telmo, Capital Federal
$ 6.500.000
+ $ 600.000 expensas
En alquiler

Características principales de la propiedad

Tipo

Local Comercial

Dormitorios

0

Baños

0

Ambientes

1

Área Total

464

Área Cubierta

464

Antigüedad

0 años

Publicado

29 de julio de 2025

Descripción

Impresionante Local Comercial con 18 Metros de Frente sobre Cochabamba. Ubicado a solo una cuadra de Av. San Juan, del Museo de Arte Contemporáneo y de una reconocida zona turística, este local ofrece una excelente visibilidad y acceso. Cuenta con una única planta de 464 m² cubiertos, completament...

Características

CocheraCon expensasApto profesional

Ubicación

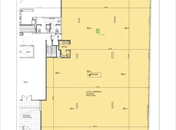
Planos

Plano 1

Información del agente

BAIGUN REALTY

BAIGUN REALTY

¿Sos de esta inmobiliaria?

Reclamá tu perfil gratis y conseguí más leads calificados con IA. Sin comisiones, sin límites.

Conocer más

Información sobre los datos

Los derechos de los datos de esta propiedad pertenecen a la inmobiliaria correspondiente. Roomix utiliza múltiples fuentes de portales inmobiliarios como ZonaProp, Argenprop, Mercado Libre y otros para indexar y mostrar propiedades disponibles en Argentina. Esta información se presenta únicamente con fines informativos y de búsqueda.

Propiedades cercanas

Propiedades similares