Sensacional Departamento en Enprendimiento Meridies 2, Tigre.

Local Comercial · 1 ambientes · 1 dormitorios · 1 baños · 53 m²

Paso al 500, Tigre, Tigre
USD 87.648
0
En venta

Características principales de la propiedad

Tipo

Local Comercial

Dormitorios

1

Baños

1

Ambientes

1

Área Total

53

Área Cubierta

53

Publicado

1 de agosto de 2024

Descripción

El éxito de Meridies, el edificio que hemos construido en la calle España 386, nos impulsó a construir, a solo dos cuadras de allí, Meridies 2, en la calle Paso 578 del municipio de Tigre. Un espacio ideal para el descanso, la lectura, observar en silencio un hermoso atardecer desde la te...

Características

Cerca del marTerrazaBalconCocheraApto creditoDuplexPileta

Ubicación

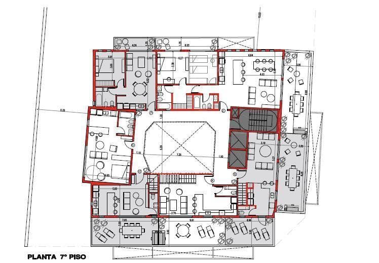
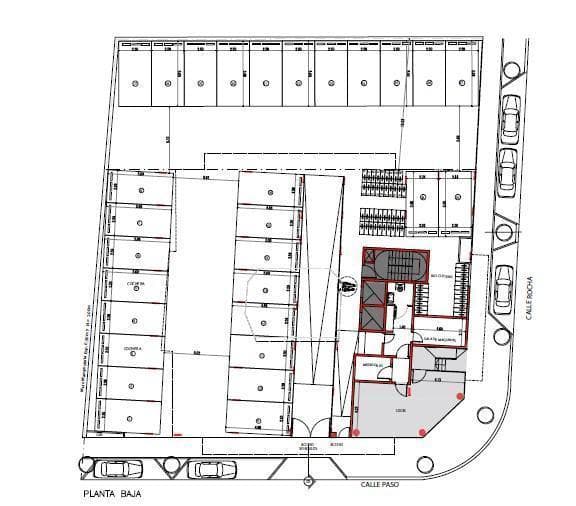
Planos

Plano 1
Plano 2
Plano 3
Plano 4
Plano 5
Plano 6
Plano 7
Plano 8
Plano 9

Análisis de mercado

Información del agente

I

Inmobiliaria

¿Sos de esta inmobiliaria?

Reclamá tu perfil gratis y conseguí más leads calificados con IA. Sin comisiones, sin límites.

Conocer más

Información sobre los datos

Los derechos de los datos de esta propiedad pertenecen a la inmobiliaria correspondiente. Roomix utiliza múltiples fuentes de portales inmobiliarios como ZonaProp, Argenprop, Mercado Libre y otros para indexar y mostrar propiedades disponibles en Argentina. Esta información se presenta únicamente con fines informativos y de búsqueda.

Propiedades cercanas

Propiedades similares