Local comercial en alquiler en zona estratégica de Villa Martelli

Local Comercial · 1 ambientes · 1 baños · 55 m²

Mejico al 3700, Villa Martelli, Vicente López
$ 800.000
En alquiler

Características principales de la propiedad

Tipo

Local Comercial

Dormitorios

0

Baños

1

Ambientes

1

Área Total

55

Área Cubierta

55

Antigüedad

40 años

Publicado

6 de octubre de 2025

Descripción

Alquiler de local comercial en Villa Martelli, ubicado en una zona estratégica a pocos metros de Av. Mitre, Av. Ricardo Balbín y Av. General Paz, lo que garantiza excelente accesibilidad y gran circulación peatonal y vehicular.El inmueble cuenta con una superficie de 55 m², dispone de doble entrada...

Características

CocheraCerca de transporte publicoApto profesional

Ubicación

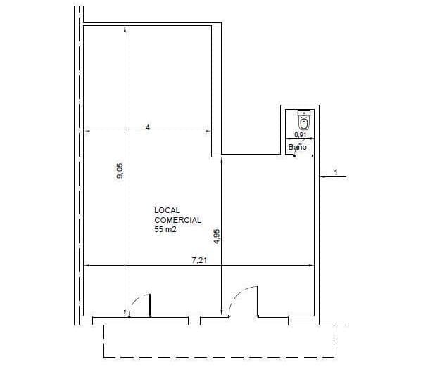
Planos

Plano 1

Información del agente

M.Parrinello Operaciones Inmobiliarias

M.Parrinello Operaciones Inmobiliarias

¿Sos de esta inmobiliaria?

Reclamá tu perfil gratis y conseguí más leads calificados con IA. Sin comisiones, sin límites.

Conocer más

Información sobre los datos

Los derechos de los datos de esta propiedad pertenecen a la inmobiliaria correspondiente. Roomix utiliza múltiples fuentes de portales inmobiliarios como ZonaProp, Argenprop, Mercado Libre y otros para indexar y mostrar propiedades disponibles en Argentina. Esta información se presenta únicamente con fines informativos y de búsqueda.

Propiedades cercanas

Propiedades similares