Local a Estrenar a Media Cuadra de La Plaza en Villa Pueyrredón

Local Comercial · 1 ambientes · 55 m²

Argerich al 4300, Villa Pueyrredón, Capital Federal
USD 149.000
0
En venta

Características principales de la propiedad

Tipo

Local Comercial

Dormitorios

0

Baños

0

Ambientes

1

Área Total

55

Área Cubierta

33

Publicado

7 de marzo de 2025

Descripción

LANZAMIENTO CALIDAD ONE PLACE | Villa Pueyrredón| Argerich 4362 2° A | U$S 110.000Excelente local c/depósito ideal café "take away" en la calle Argerich 4362, entre Habana y José Cubas, a media cuadra de la plaza Rodríguez, pulmón verde de Villa Pueyrredón.Colectivos cercanos a esta ubicac...

Características

Cerca de transporte publicoAccesible para personas con movilidad reducida

Ubicación

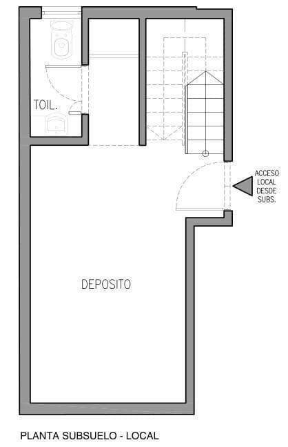
Planos

Plano 1
Plano 2

Análisis de mercado

Historial de Precios

Evolución del precio desde la publicación original

USD 149.000
Precio actual
Esta propiedad subió un 21.1% su precio desde que se publicó
7 mar - 25 sept
+USD 26.000(+21.1%)
Precio Original
USD 123.000
Precio Actual
USD 149.000
Cambios de Precio
2

Información del agente

I

Inmobiliaria

¿Sos de esta inmobiliaria?

Reclamá tu perfil gratis y conseguí más leads calificados con IA. Sin comisiones, sin límites.

Conocer más

Información sobre los datos

Los derechos de los datos de esta propiedad pertenecen a la inmobiliaria correspondiente. Roomix utiliza múltiples fuentes de portales inmobiliarios como ZonaProp, Argenprop, Mercado Libre y otros para indexar y mostrar propiedades disponibles en Argentina. Esta información se presenta únicamente con fines informativos y de búsqueda.

Propiedades cercanas

Propiedades similares