Local 180 m² Av Cordoba y Gascon C/salida a 2 Calles Ent/dic 2025

Local Comercial · 3 ambientes · 2 baños · 180 m²

AVENIDA CORDOBA 4000, Villa Crespo, Capital Federal
USD 499.000
0
En venta

Características principales de la propiedad

Tipo

Local Comercial

Dormitorios

0

Baños

2

Ambientes

3

Área Total

180

Área Cubierta

180

Publicado

2 de abril de 2025

Descripción

LOCAL COMERCIAL SOBRE AV. CORDOBA ENTRE GASCON Y PALESTINA CON SALIDA A 2 CALLES ESTADO DE iSRAEL Y AV. CORDOBA APTO TODO DESTINO, TIRAJE A LOS 4 VIENTOS PARA GASTRONOMIA LOCAL EN PLANTA + SUBSUELO SUPERFICIES: POR ESTADO DE ISRAEL 8,66 X 5 M2 DE FTE DE AV. CORDOBA ENTREGA DICIEMBRE 2025 FORMA DE PA...

Características

Apto profesionalCerca de zona gastronomica

Ubicación

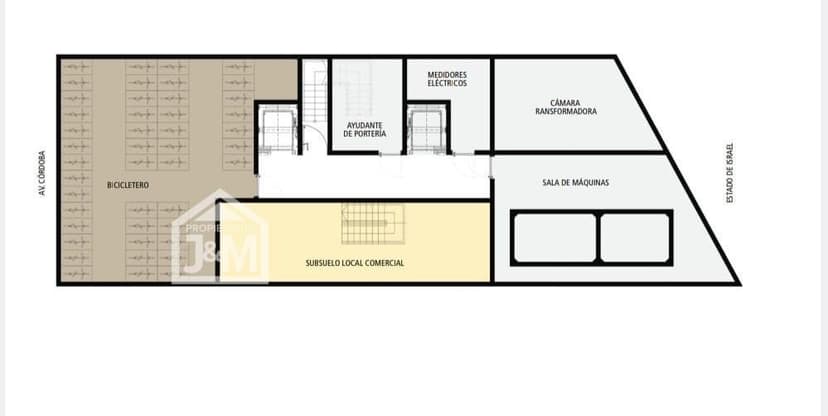
Planos

Plano 1
Plano 2
Plano 3

Análisis de mercado

Información del agente

I

Inmobiliaria

¿Sos de esta inmobiliaria?

Reclamá tu perfil gratis y conseguí más leads calificados con IA. Sin comisiones, sin límites.

Conocer más

Información sobre los datos

Los derechos de los datos de esta propiedad pertenecen a la inmobiliaria correspondiente. Roomix utiliza múltiples fuentes de portales inmobiliarios como ZonaProp, Argenprop, Mercado Libre y otros para indexar y mostrar propiedades disponibles en Argentina. Esta información se presenta únicamente con fines informativos y de búsqueda.

Propiedades cercanas

Propiedades similares