Terreno con Edificio de 9 Pisos y 3 Subsuelo de Parking

Local Comercial · 30 ambientes · 10 baños · 5500 m²

av Callao al 800, Recoleta, Capital Federal
USD 5.980.000
0
En venta

Características principales de la propiedad

Tipo

Local Comercial

Dormitorios

0

Baños

10

Ambientes

30

Área Total

5500

Área Cubierta

5500

Antigüedad

50 años

Publicado

10 de abril de 2025

Descripción

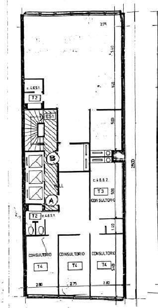
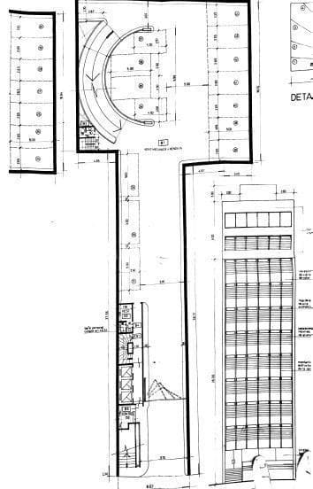
EDIFICIO DE 5.500MTS CONSTRUIDOS CON 9 PISOS DE 2.000MTS CUBIERTOS DE OFICINAS Y 3 SUBSUELO DE COCHERAS/PARKING CON 2.500.- MTS. CONSTRUIDOS CUBIERTOS PARA 160 AUTOS IDEAL INVERSION RENTA - TOTALES CUBIERTOS 5.500MTS Y DE TERRENO 750MTS.- IDEAL RENTA!!!Mts. de subte Callao - Parking funcionando...

Características

Ideal para alquiler

Ubicación

Planos

Plano 1
Plano 2
Plano 3

Análisis de mercado

Historial de Precios

Evolución del precio desde la publicación original

USD 5.980.000
Precio actual
Esta propiedad bajó un 14.5% su precio desde que se publicó
10 abr - 25 sept
USD -1.015.000(-14.5%)
Precio Original
USD 6.995.000
Precio Actual
USD 5.980.000
Cambios de Precio
2

Información del agente

I

Inmobiliaria

¿Sos de esta inmobiliaria?

Reclamá tu perfil gratis y conseguí más leads calificados con IA. Sin comisiones, sin límites.

Conocer más

Información sobre los datos

Los derechos de los datos de esta propiedad pertenecen a la inmobiliaria correspondiente. Roomix utiliza múltiples fuentes de portales inmobiliarios como ZonaProp, Argenprop, Mercado Libre y otros para indexar y mostrar propiedades disponibles en Argentina. Esta información se presenta únicamente con fines informativos y de búsqueda.

Propiedades cercanas

Propiedades similares