Local en 3 plantas de 600m2 a estrenar - venta y alquiler - Berazategui

Local Comercial · 1 baños · 600 m²

Avenida Mitre 1109, Berazategui, Berazategui
USD 5.000
En alquiler

Características principales de la propiedad

Tipo

Local Comercial

Dormitorios

0

Baños

1

Ambientes

0

Área Total

600

Área Cubierta

600

Antigüedad

0 años

Publicado

30 de septiembre de 2025

Descripción

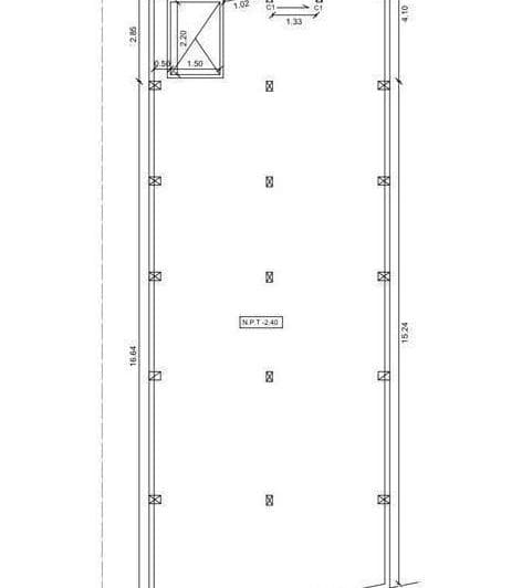
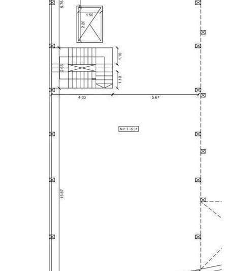
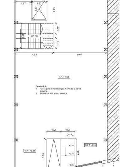
Local en 3 plantas, 600m2 totales, a estrenar - venta y alquiler - Av. Mitre 1109, Berazategui. La propiedad consta de, Planta baja, primer piso y subsuelo, Cada planta 200m2. Oficina con baño completo y toilette en salon primero priso. Se entrega con instalación preparada para energia trifásica y...

Características

OficinasCocheraA estrenar

Ubicación

Planos

Plano 1
Plano 2
Plano 3

Información del agente

Llense Bienes Raíces

Llense Bienes Raíces

¿Sos de esta inmobiliaria?

Reclamá tu perfil gratis y conseguí más leads calificados con IA. Sin comisiones, sin límites.

Conocer más

Información sobre los datos

Los derechos de los datos de esta propiedad pertenecen a la inmobiliaria correspondiente. Roomix utiliza múltiples fuentes de portales inmobiliarios como ZonaProp, Argenprop, Mercado Libre y otros para indexar y mostrar propiedades disponibles en Argentina. Esta información se presenta únicamente con fines informativos y de búsqueda.

Propiedades cercanas

Propiedades similares