ALQUILER LOCAL COMERCIAL CABALLITO 125M2 CID CAMPEADOR

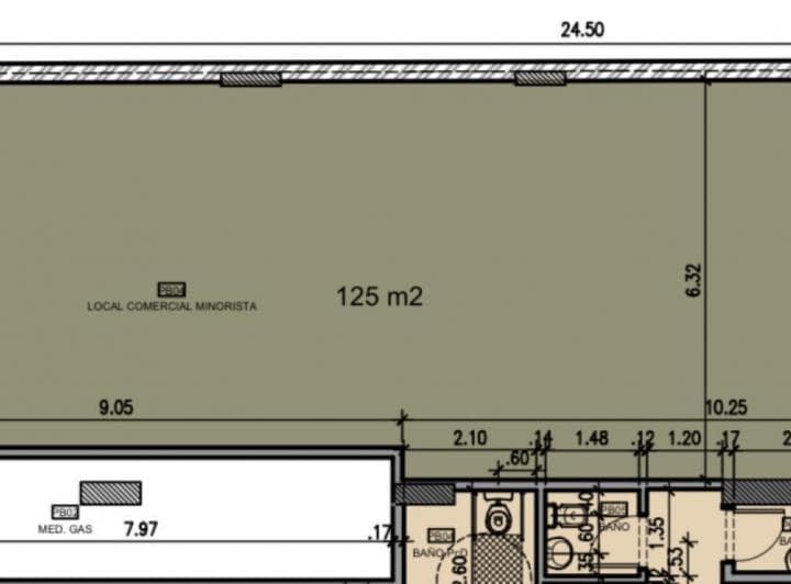
Local Comercial · 125 m²

RIO DE Janeiro al 800, Caballito, Capital Federal
$ 1.950.000
En alquiler

Características principales de la propiedad

Tipo

Local Comercial

Dormitorios

0

Baños

0

Ambientes

0

Área Total

125

Área Cubierta

125

Antigüedad

0 años

Publicado

23 de octubre de 2025

Descripción

Local comercial en Río de Janeiro al 800 – Parque Centenario Local a estrenar en planta baja de 125 m², con frente vidriado. Ubicado a pocos metros del Parque Centenario, en una zona muy transitada, con excelente caudal peatonal y vehicular. Forma parte de un edificio de gran tamaño con numerosas u...

Características

CocheraA estrenarCerca del supermercado

Ubicación

Planos

Plano 1

Información del agente

Silvia Erich Consultora Inmobiliaria

Silvia Erich Consultora Inmobiliaria

¿Sos de esta inmobiliaria?

Reclamá tu perfil gratis y conseguí más leads calificados con IA. Sin comisiones, sin límites.

Conocer más

Información sobre los datos

Los derechos de los datos de esta propiedad pertenecen a la inmobiliaria correspondiente. Roomix utiliza múltiples fuentes de portales inmobiliarios como ZonaProp, Argenprop, Mercado Libre y otros para indexar y mostrar propiedades disponibles en Argentina. Esta información se presenta únicamente con fines informativos y de búsqueda.

Propiedades cercanas

Propiedades similares