Inversores de Locales / Núñez

Local Comercial · 140 m²

Deheza 2300, Núñez, Capital Federal
USD 450.000
En venta

Características principales de la propiedad

Tipo

Local Comercial

Dormitorios

0

Baños

0

Ambientes

0

Área Total

140

Área Cubierta

125

Antigüedad

0 años

Publicado

17 de septiembre de 2025

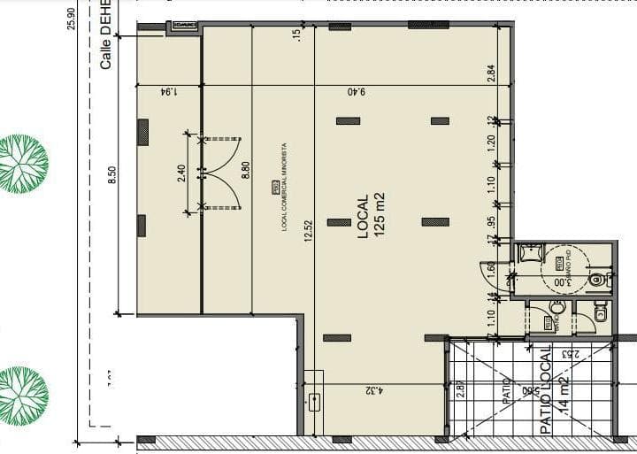
Descripción

Sobre calle Deheza al 2300 entre Av. Cabildo y Vuelta de Obligado, barrio de Núñez. Excelente Local a Estrenar. Ideal Invesores de Locales. Ideal Showrrom de PYMES. Superficie Cubierta: 125 m2 Superficie Descubierta: 15 m2 Si estas interesado en conocer el Inmueble, no dude en contactarnos...

Características

Uso comercialMuy luminosoAccesible para personas con movilidad reducidaCocheraA estrenarIdeal para renovacion

Ubicación

Planos

Plano 1

Análisis de mercado

Información del agente

Penín Díaz Propiedades

Penín Díaz Propiedades

¿Sos de esta inmobiliaria?

Reclamá tu perfil gratis y conseguí más leads calificados con IA. Sin comisiones, sin límites.

Conocer más

Información sobre los datos

Los derechos de los datos de esta propiedad pertenecen a la inmobiliaria correspondiente. Roomix utiliza múltiples fuentes de portales inmobiliarios como ZonaProp, Argenprop, Mercado Libre y otros para indexar y mostrar propiedades disponibles en Argentina. Esta información se presenta únicamente con fines informativos y de búsqueda.

Propiedades cercanas

Propiedades similares