Local en Venta ubicado en Puerto Madero, Capital Federal

Local Comercial · 2 baños · 424 m²

Aime Paine 1300, Puerto Madero, Capital Federal
USD 2.000.000
+ $ 1.400.000 expensas
En venta

Características principales de la propiedad

Tipo

Local Comercial

Dormitorios

0

Baños

2

Ambientes

0

Área Total

424

Antigüedad

10 años

Publicado

10 de julio de 2025

Descripción

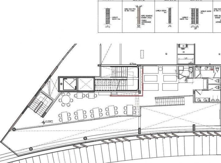
Excelente local comercial, apto gastronomico en el edificio Mulieris!!! El local tiene una superficie total de 424 m2, distribuidos en 264 m2 en planta baja, 120 m2 en entrepiso y 40 m2 en 1º piso. Ideal restaurant, ya que esta habilitado para tal fin. Baño de discapacitados en planta baja y dos b...

Características

CocheraCon expensasApto profesional

Ubicación

Planos

Plano 1

Análisis de mercado

Información del agente

Tizado

Tizado

¿Sos de esta inmobiliaria?

Reclamá tu perfil gratis y conseguí más leads calificados con IA. Sin comisiones, sin límites.

Conocer más

Información sobre los datos

Los derechos de los datos de esta propiedad pertenecen a la inmobiliaria correspondiente. Roomix utiliza múltiples fuentes de portales inmobiliarios como ZonaProp, Argenprop, Mercado Libre y otros para indexar y mostrar propiedades disponibles en Argentina. Esta información se presenta únicamente con fines informativos y de búsqueda.

Propiedades cercanas

Propiedades similares