Venta de local de 344m2 a estrenar, 2 pisos con subsuelo, Villa Urquiza, CABA.

Local Comercial · 3 baños · 351 m²

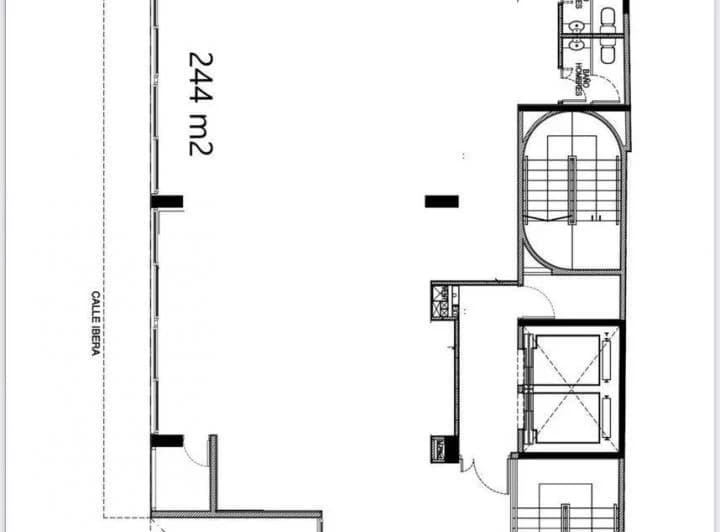
Avenida Triunvirato e Ibera, Villa Urquiza, Capital Federal
USD 4.000
En alquiler

Características principales de la propiedad

Tipo

Local Comercial

Dormitorios

0

Baños

3

Ambientes

0

Área Total

351

Área Cubierta

351

Antigüedad

0 años

Publicado

11 de julio de 2025

Descripción

Local a la calle de 2 pisos con subsuelo de 351m2 aprox. a ESTRENAR! Situado en edificio con EXCELENTE UBICACION; esquina de Av. Triunvirato e Ibera. APTO GASTRONOMIA Pisos a elección del comprador. Planta baja de 47m2 con un baño. Primer piso de 244 m2 con dos baños. Subsuelo de 60 m2 El subsu...

Características

Uso comercialApto profesionalOficinasCocheraA estrenarCon expensasApto credito

Ubicación

Planos

Plano 1
Plano 2
Plano 3

Información del agente

Keller Williams Norte

Keller Williams Norte

¿Sos de esta inmobiliaria?

Reclamá tu perfil gratis y conseguí más leads calificados con IA. Sin comisiones, sin límites.

Conocer más

Información sobre los datos

Los derechos de los datos de esta propiedad pertenecen a la inmobiliaria correspondiente. Roomix utiliza múltiples fuentes de portales inmobiliarios como ZonaProp, Argenprop, Mercado Libre y otros para indexar y mostrar propiedades disponibles en Argentina. Esta información se presenta únicamente con fines informativos y de búsqueda.

Propiedades cercanas

Propiedades similares