Local en Venta en Villanueva, Tigre, G.B.A. Zona Norte

Local Comercial · 270 m²

Avenida Italia 3000, Villanueva, Tigre
USD 350.000
En venta

Características principales de la propiedad

Tipo

Local Comercial

Dormitorios

0

Baños

0

Ambientes

0

Área Total

270

Área Cubierta

270

Antigüedad

0 años

Publicado

2 de julio de 2025

Descripción

¡inversores y futuros propietarios! ¿Listos para ser parte de la nueva Joya de Villanueva? Presentamos Doral, el complejo de uso mixto que va a revolucionar la zona. Imaginate vivir, trabajar y disfrutar, todo en un mismo lugar. Doral te ofrece: Deptos de 1, 2 y 3 ambientes con terminaciones de p...

Características

CocheraApto creditoIdeal para alquiler

Ubicación

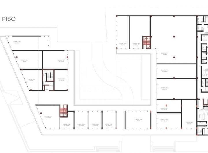
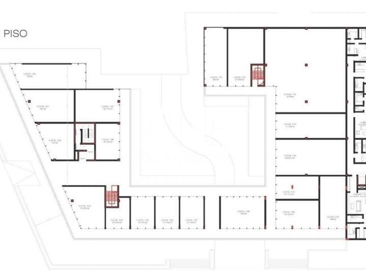
Planos

Plano 1
Plano 2

Análisis de mercado

Historial de Precios

Evolución del precio desde la publicación original

USD 350.000
Precio actual
Esta propiedad bajó un 35.2% su precio desde que se publicó
2 jul - 25 sept
USD -190.000(-35.2%)
Precio Original
USD 540.000
Precio Actual
USD 350.000
Cambios de Precio
2

Información del agente

DaLo Propiedades SAS

DaLo Propiedades SAS

¿Sos de esta inmobiliaria?

Reclamá tu perfil gratis y conseguí más leads calificados con IA. Sin comisiones, sin límites.

Conocer más

Información sobre los datos

Los derechos de los datos de esta propiedad pertenecen a la inmobiliaria correspondiente. Roomix utiliza múltiples fuentes de portales inmobiliarios como ZonaProp, Argenprop, Mercado Libre y otros para indexar y mostrar propiedades disponibles en Argentina. Esta información se presenta únicamente con fines informativos y de búsqueda.

Propiedades cercanas

Propiedades similares