Alquiler Oficina de 400 m² en Monserrat 3 Cocheras

Oficina comercial · 1 ambientes · 5 baños · 440 m²

Lima al 300, Monserrat, Capital Federal
USD 1.900
+ $ 2.000.000 expensas
En alquiler

Características principales de la propiedad

Tipo

Oficina comercial

Dormitorios

0

Baños

5

Ambientes

1

Área Total

440

Área Cubierta

440

Publicado

17 de marzo de 2025

Descripción

Alquiler de Oficina en edificio de categoría.de 447m2 totales + 3 cocheras cubiertas o LED.Edificio Word Trade Center, con oficinas premium de excelente imagen corporativa. Oficina en PB y primer piso, ambas con entradas independientes,, cómoda área de trabajo con despachos privados, y gran planta l...

Características

CocheraSeguridad 24hsCerca de transporte publico

Ubicación

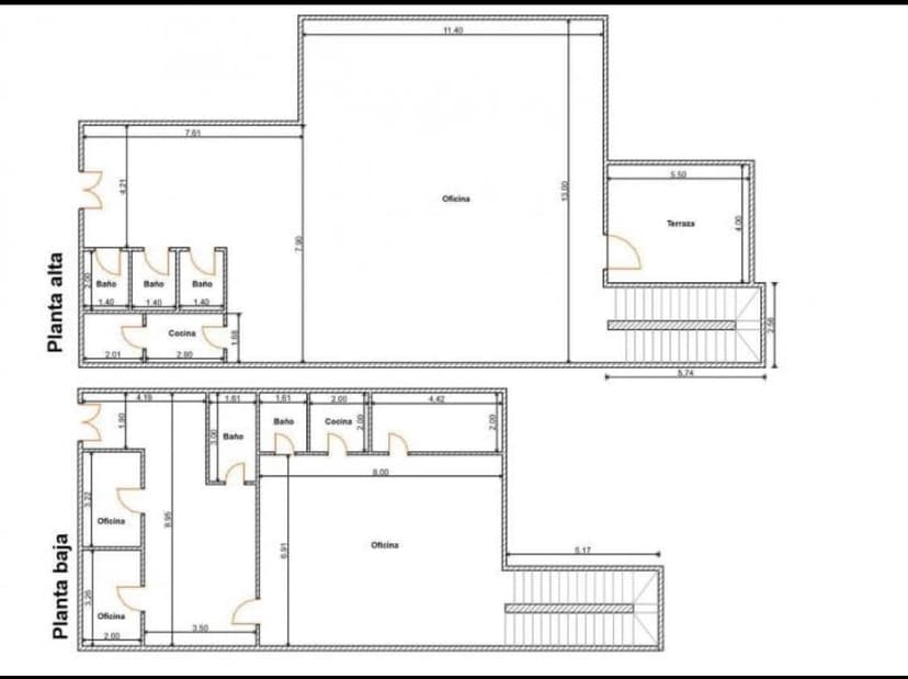
Planos

Plano 1

Historial de Precios

Evolución del precio desde la publicación original

USD 1.900
Precio actual
Esta propiedad bajó un 13.6% su precio desde que se publicó
17 mar - 5 sept
USD -300(-13.6%)
Precio Original
USD 2.200
Precio Actual
USD 1.900
Cambios de Precio
2

Información del agente

I

Inmobiliaria

¿Sos de esta inmobiliaria?

Reclamá tu perfil gratis y conseguí más leads calificados con IA. Sin comisiones, sin límites.

Conocer más

Información sobre los datos

Los derechos de los datos de esta propiedad pertenecen a la inmobiliaria correspondiente. Roomix utiliza múltiples fuentes de portales inmobiliarios como ZonaProp, Argenprop, Mercado Libre y otros para indexar y mostrar propiedades disponibles en Argentina. Esta información se presenta únicamente con fines informativos y de búsqueda.

Propiedades cercanas

Propiedades similares