Av. L. N. Alem 1050 Piso 3 - Excelente Semipiso de Oficinas en Alquiler

Oficina comercial · 8 baños · 568 m²

Av. L. Alem 1050 Piso 3, Catalinas, Retiro
USD 7.200
+ $ 1.946.500 expensas
En alquiler

Características principales de la propiedad

Tipo

Oficina comercial

Dormitorios

0

Baños

8

Ambientes

0

Área Total

568

Área Cubierta

568

Antigüedad

42 años

Publicado

22 de octubre de 2025

Descripción

Excelente Oficina en Alquiler - Ubicación Privilegiada - Frente: 50 metros sobre Av. Alem y sobre Reconquista. . Sempiso: • Superficie Total: 568 m² totales • Distribución: • Área de Oficinas: Amplios espacios abiertos, ideales para divisiones flexibles según necesidades. • Recepción/Entrada Pri...

Características

Aire acondicionadoCocinaCocheraCon expensasApto profesional

Ubicación

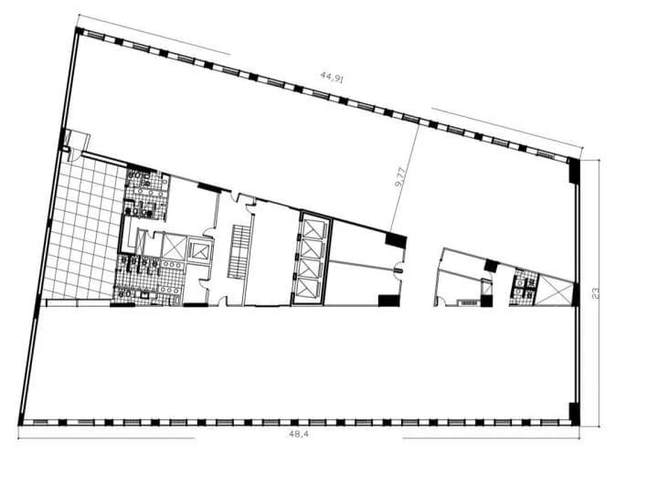
Planos

Plano 1
Plano 2

Información del agente

Diego Delfino Servicios Inmobiliarios para Empresa

Diego Delfino Servicios Inmobiliarios para Empresa

¿Sos de esta inmobiliaria?

Reclamá tu perfil gratis y conseguí más leads calificados con IA. Sin comisiones, sin límites.

Conocer más

Información sobre los datos

Los derechos de los datos de esta propiedad pertenecen a la inmobiliaria correspondiente. Roomix utiliza múltiples fuentes de portales inmobiliarios como ZonaProp, Argenprop, Mercado Libre y otros para indexar y mostrar propiedades disponibles en Argentina. Esta información se presenta únicamente con fines informativos y de búsqueda.

Propiedades cercanas

Propiedades similares