Venta Oficinas 600 m2 en Monserrat

Oficina comercial · 7 baños · 600 m²

Bernardo de Irigoyen 300, Monserrat, Capital Federal
USD 290.000
En venta

Características principales de la propiedad

Tipo

Oficina comercial

Dormitorios

0

Baños

7

Ambientes

0

Área Total

600

Área Cubierta

600

Antigüedad

57 años

Publicado

11 de octubre de 2025

Descripción

Corredor Responsable: LAURA PALINI CSM 2733 / CPI 7752 - Contacto: Rodrigo Heidel Venta de oficinas en Microcentro Excelente ubicación y accesibilidad Sobre la calle Bernardo de Irigoyen al 300, a 900 metros de Plaza de Mayo y del Obelisco, rodeado de importante zona comercial y medios de transpo...

Características

Aire acondicionadoCocinaHallAscensorCocheraCerca de transporte publicoNo accesible para personas con movilidad reducidaApto credito

Ubicación

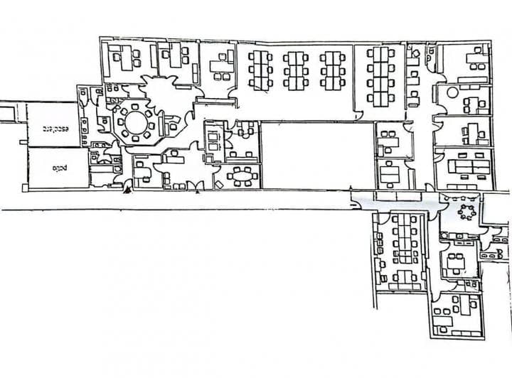
Planos

Plano 1

Análisis de mercado

Información del agente

Laura Palini

Laura Palini

¿Sos de esta inmobiliaria?

Reclamá tu perfil gratis y conseguí más leads calificados con IA. Sin comisiones, sin límites.

Conocer más

Información sobre los datos

Los derechos de los datos de esta propiedad pertenecen a la inmobiliaria correspondiente. Roomix utiliza múltiples fuentes de portales inmobiliarios como ZonaProp, Argenprop, Mercado Libre y otros para indexar y mostrar propiedades disponibles en Argentina. Esta información se presenta únicamente con fines informativos y de búsqueda.

Propiedades cercanas

Propiedades similares