Alquiler de Oficina - Parque Patricios

Oficina comercial · 2 baños · 84 m²

Av Sanchez de Loria al 2300, Parque Patricios, Capital Federal
$ 970.000
+ $ 345.000 expensas
En alquiler

Características principales de la propiedad

Tipo

Oficina comercial

Dormitorios

0

Baños

2

Ambientes

0

Área Total

84

Área Cubierta

84

Antigüedad

0 años

Publicado

27 de octubre de 2025

Descripción

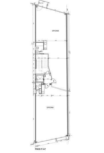
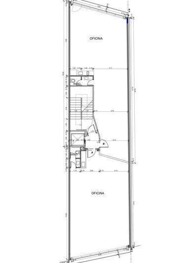
Oficinas en Alquiler (Distrito Tecnológico) Edificio a Estrenar, entrega inmediata. Plantas disponibles del Piso 1 al 4 to Piso, de 160 m2 Las mismas se entregaran con pisos , aires colocados y kitchenette Cercanía inmediata al Parque de Los Patricios y a la linea del Subte H (Estación Hospital...

Características

CocheraCon expensasA estrenarCerca de transporte publicoCerca del hospital

Planos

Plano 1
Plano 2
Plano 3

Información del agente

PUEBLA INMOBILIARIA -

PUEBLA INMOBILIARIA -

¿Sos de esta inmobiliaria?

Reclamá tu perfil gratis y conseguí más leads calificados con IA. Sin comisiones, sin límites.

Soy el dueño de esta inmobiliaria y quiero reclamar mi perfil

Información sobre los datos

Los derechos de los datos de esta propiedad pertenecen a la inmobiliaria correspondiente. Roomix utiliza múltiples fuentes de portales inmobiliarios como ZonaProp, Argenprop, Mercado Libre y otros para indexar y mostrar propiedades disponibles en Argentina. Esta información se presenta únicamente con fines informativos y de búsqueda.

Propiedades cercanas

Propiedades similares