Oficina en Parque Patricios

Oficina comercial · 174 m²

Av. Caseros al 2500, Parque Patricios, Capital Federal
USD 295.000
En venta

Detectamos una posible estafa: el anuncio menciona pagos en criptomonedas. Por seguridad, no mostramos el WhatsApp.

Características principales de la propiedad

Tipo

Oficina comercial

Dormitorios

0

Baños

0

Ambientes

0

Área Total

174

Área Cubierta

127

Antigüedad

0 años

Publicado

2 de julio de 2025

Descripción

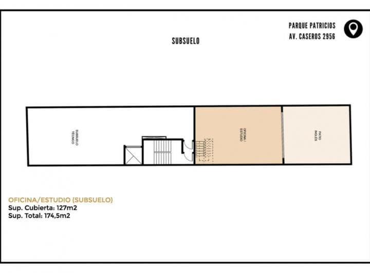
Venta Oficina Green Caseros - Parque Patricios La Oficina cuenta con una superficie total de 174,5 m² y 127 m² cubiertos, este espacio se presenta como una planta flexible y funcional, con potencial para adaptar diferentes áreas de trabajo, salas de reuniones, recepción y espacios colaborativos. Gr...

Características

Muy luminosoAire acondicionadoCalefaccionInternetCocheraApto profesionalCerca de transporte publico

Ubicación

Planos

Plano 1
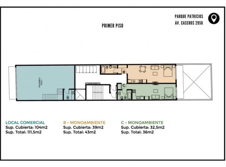
Plano 2
Plano 3
Plano 4
Plano 5
Plano 6

Análisis de mercado

Información del agente

Detectamos una posible estafa: el anuncio menciona pagos en criptomonedas. Por seguridad, no mostramos el WhatsApp.

Lanven S.A.

Lanven S.A.

¿Sos de esta inmobiliaria?

Reclamá tu perfil gratis y conseguí más leads calificados con IA. Sin comisiones, sin límites.

Conocer más

Información sobre los datos

Los derechos de los datos de esta propiedad pertenecen a la inmobiliaria correspondiente. Roomix utiliza múltiples fuentes de portales inmobiliarios como ZonaProp, Argenprop, Mercado Libre y otros para indexar y mostrar propiedades disponibles en Argentina. Esta información se presenta únicamente con fines informativos y de búsqueda.

Propiedades cercanas

Propiedades similares