SERRANO 669 - Villa Crespo - Importante Ofician Corporativa

Oficina comercial · 2 baños · 836 m²

serrano 669, Villa Crespo, Capital Federal
USD 21.800
En alquiler

Características principales de la propiedad

Tipo

Oficina comercial

Dormitorios

0

Baños

2

Ambientes

0

Área Total

836

Área Cubierta

836

Antigüedad

9 años

Publicado

1 de octubre de 2025

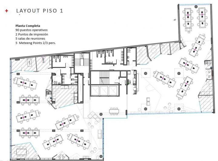
Descripción

Piso de edificio corporativo de oficinas Planta libre de 836m² Cuenta con 2 cocheras cubiertas y espacio para 4 motos, además zona para bicicletas. El edificio tiene en Planta Baja una amplia recepcion con personal que acredita el ingreso de las visitas. Ingreso por control de molinetes Segurid...

Características

Uso comercialApto profesionalMuy luminosoAire acondicionadoAlarmaCalefaccionSeguridad 24hsHallOficinasPatioInternetEncargado VigilanciaServicio de limpiezaAscensorAccesible para personas con movilidad reducidaCocheraCon expensasCerca de transporte publico

Ubicación

Planos

Plano 1

Información del agente

PAREDES Brokers

PAREDES Brokers

¿Sos de esta inmobiliaria?

Reclamá tu perfil gratis y conseguí más leads calificados con IA. Sin comisiones, sin límites.

Conocer más

Información sobre los datos

Los derechos de los datos de esta propiedad pertenecen a la inmobiliaria correspondiente. Roomix utiliza múltiples fuentes de portales inmobiliarios como ZonaProp, Argenprop, Mercado Libre y otros para indexar y mostrar propiedades disponibles en Argentina. Esta información se presenta únicamente con fines informativos y de búsqueda.

Propiedades cercanas

Propiedades similares