Departamento 3 ambientes PH Luminoso balcon terraza lavadero Refaccionado Al frente en Lanus

PH · 3 ambientes · 2 dormitorios · 1 baños · 140 m²

Pineiro Juan al 200, Lanús Oeste, Lanús
USD 120.000
En venta

Características principales de la propiedad

Tipo

PH

Dormitorios

2

Baños

1

Ambientes

3

Área Total

140

Área Cubierta

140

Antigüedad

62 años

Publicado

15 de julio de 2025

Descripción

PH de 3 ambientes. AMPLIO y LUMINOSO, en MUY BUEN ESTADO. BALCON al FRENTE, TERRAZA con PARRILLA y lavadero independiente. APTO CREDITO y APTO PROFESIONAL. No paga expensas.- Sup. Cubierta: 73.19 m2 / Sup. descubierta: 63.19 m2. - cañerias e instalacion electrica a nuevo. - Acceso por escalera. - U...

Características

Apto profesionalVista al frenteOrientacion suroesteAire acondicionadoCalefaccionBalconCocinaLavaderoLiving comedorTerrazaToiletteCocheraApto creditoLuminosoSin expensasApto para mascotasReciclado

Ubicación

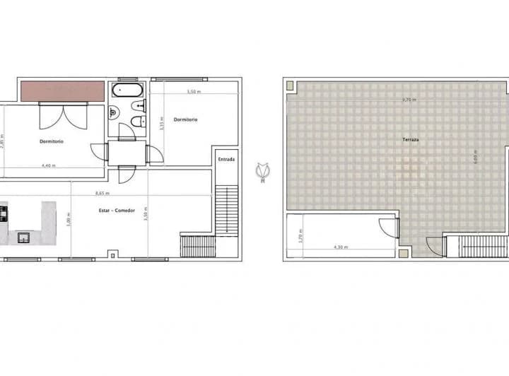
Planos

Plano 1

Análisis de mercado

Información del agente

Toribio Achával

Toribio Achával

¿Sos de esta inmobiliaria?

Reclamá tu perfil gratis y conseguí más leads calificados con IA. Sin comisiones, sin límites.

Conocer más

Información sobre los datos

Los derechos de los datos de esta propiedad pertenecen a la inmobiliaria correspondiente. Roomix utiliza múltiples fuentes de portales inmobiliarios como ZonaProp, Argenprop, Mercado Libre y otros para indexar y mostrar propiedades disponibles en Argentina. Esta información se presenta únicamente con fines informativos y de búsqueda.

Propiedades cercanas

Propiedades similares