PH S/exp Al Frente en Catamarca y Av Independencia - 114 m² Gran Patio Todo Sol

PH · 4 ambientes · 3 dormitorios · 1 baños · 114 m²

Catamarca Y AV. Independencia, San Cristobal, Capital Federal
USD 120.000
0
En venta

Detectamos una posible estafa: el anuncio menciona pagos en criptomonedas. Por seguridad, no mostramos el WhatsApp.

Características principales de la propiedad

Tipo

PH

Dormitorios

3

Baños

1

Ambientes

4

Área Total

114

Área Cubierta

114

Antigüedad

40 años

Publicado

6 de febrero de 2025

Descripción

PH 4 AMBIENTES + ENTREPISOS, SIN EXPENSAS Y AL FRENTE. 114 M2. IMPECABLE. PATIO LATERAL CUBIERTO. TODO SOL. BAÑO Y COCINA COMPLETOS RECICLADOS. SERVICIOS INDIVIDUALES. LAVADERO INDEPENDIENTE CUBIERTO. PISOS DE PINOTEA. CARPINTERIAS DE CEDRO. PROTECCION EN TODAS LAS VENTANAS. EXCELENTE FACHADA, DE ES...

Características

Sin expensasRecicladoPHNo accesible para personas con movilidad reducida

Ubicación

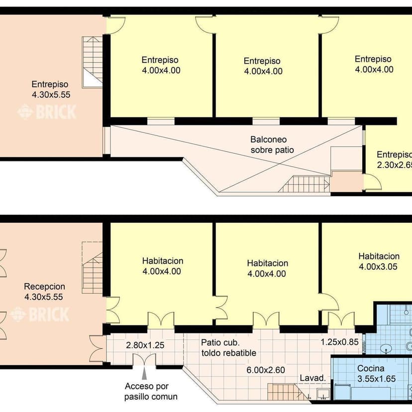
Planos

Plano 1

Análisis de mercado

Historial de Precios

Evolución del precio desde la publicación original

USD 120.000
Precio actual
Esta propiedad bajó un 11.1% su precio desde que se publicó
6 feb - 25 sept
USD -15.000(-11.1%)
Precio Original
USD 135.000
Precio Actual
USD 120.000
Cambios de Precio
2

Información del agente

Detectamos una posible estafa: el anuncio menciona pagos en criptomonedas. Por seguridad, no mostramos el WhatsApp.

Brick Propiedades & Servicios

Brick Propiedades & Servicios

¿Sos de esta inmobiliaria?

Reclamá tu perfil gratis y conseguí más leads calificados con IA. Sin comisiones, sin límites.

Conocer más

Información sobre los datos

Los derechos de los datos de esta propiedad pertenecen a la inmobiliaria correspondiente. Roomix utiliza múltiples fuentes de portales inmobiliarios como ZonaProp, Argenprop, Mercado Libre y otros para indexar y mostrar propiedades disponibles en Argentina. Esta información se presenta únicamente con fines informativos y de búsqueda.

Propiedades cercanas

Propiedades similares