Gran ph.4 amb, luminoso, San Nicolás

PH · 4 ambientes · 3 dormitorios · 1 baños · 108 m²

Rodriguez Peña 400 1°, San Nicolás, Capital Federal
$ 800.000
+ $ 200.000 expensas
En alquiler

Características principales de la propiedad

Tipo

PH

Dormitorios

3

Baños

1

Ambientes

4

Área Total

108

Área Cubierta

108

Antigüedad

80 años

Publicado

29 de septiembre de 2025

Descripción

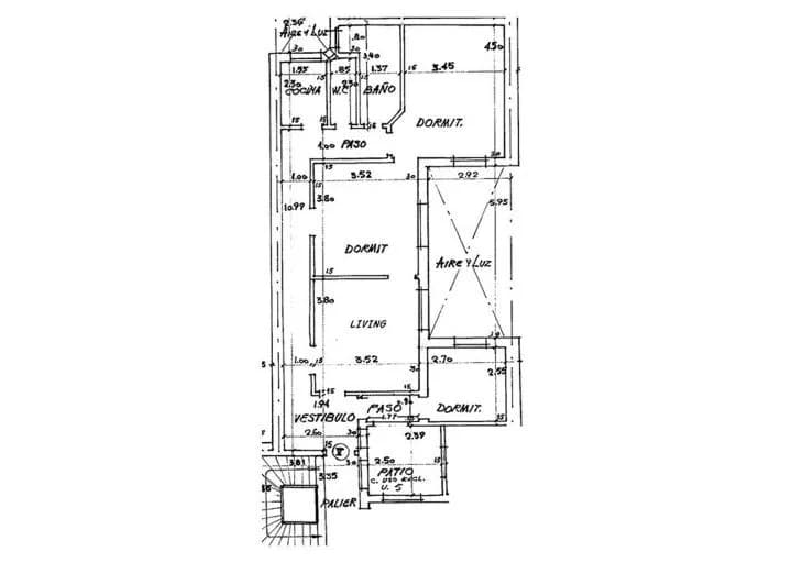
Amplio Ph de 4 amb., 108 m2 cubiertos Lateral con orientación Norte, Luz y sol en todos los ambientes Ambientes muy amplios, Vestibulo de recepción. Baño y toilette, Patio con lavadero Estado regular, Amoblado Disponible a partir de mediados de Agosto Contrato temporal x un año máximo Zona de teatr...

Características

Disposicion lateralOrientacion norteCalefaccionCocheraCon expensasCerca de transporte publico

Ubicación

Planos

Plano 1

Información del agente

BENEDETTI Propiedades

BENEDETTI Propiedades

¿Sos de esta inmobiliaria?

Reclamá tu perfil gratis y conseguí más leads calificados con IA. Sin comisiones, sin límites.

Conocer más

Información sobre los datos

Los derechos de los datos de esta propiedad pertenecen a la inmobiliaria correspondiente. Roomix utiliza múltiples fuentes de portales inmobiliarios como ZonaProp, Argenprop, Mercado Libre y otros para indexar y mostrar propiedades disponibles en Argentina. Esta información se presenta únicamente con fines informativos y de búsqueda.

Propiedades cercanas

Propiedades similares