Terreno en Villa Crespo

Terrenos · 1 ambientes · 1300 m²

Humboldt 1200 - Lote Usam, Chacarita, Capital Federal
USD 450.000
0
En venta

Características principales de la propiedad

Tipo

Terrenos

Dormitorios

0

Baños

0

Ambientes

1

Área Total

1300

Publicado

4 de abril de 2025

Descripción

VENTA DE LOTE EN VILLA CRESPOZONIFICACION U.S.A.MANTEPROYECTO REALIZADOS1300 M2 CONSTRUIBLES1000 M2 VENDIBLESSE TOMAN METROS TERMINADOS ESCRITURABLES ESPERAMOS SU CONSULTA ! Nota: La información gráfica y escrita provistas en el presente aviso es a título estimativo y no forma parte de ningún...

Ubicación

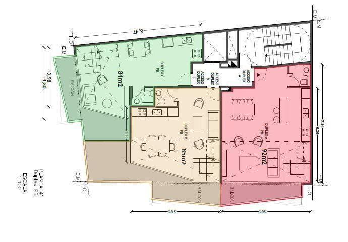
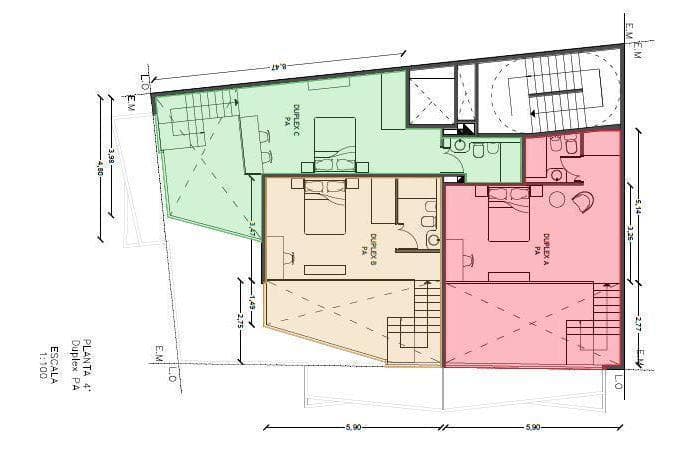
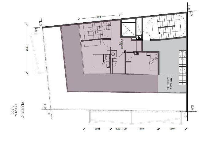
Planos

Plano 1
Plano 2
Plano 3
Plano 4
Plano 5
Plano 6
Plano 7

Análisis de mercado

Información del agente

I

Inmobiliaria

¿Sos de esta inmobiliaria?

Reclamá tu perfil gratis y conseguí más leads calificados con IA. Sin comisiones, sin límites.

Conocer más

Información sobre los datos

Los derechos de los datos de esta propiedad pertenecen a la inmobiliaria correspondiente. Roomix utiliza múltiples fuentes de portales inmobiliarios como ZonaProp, Argenprop, Mercado Libre y otros para indexar y mostrar propiedades disponibles en Argentina. Esta información se presenta únicamente con fines informativos y de búsqueda.

Propiedades cercanas

Propiedades similares