Venta Lote Planos Aprobados - Acepta m en Parte de Pago

Terrenos · 1 ambientes · 476 m²

PIERES 400. Entre Patron y Garcia de cossio, Liniers, Capital Federal
USD 750.000
0
En venta

Características principales de la propiedad

Tipo

Terrenos

Dormitorios

0

Baños

0

Ambientes

1

Área Total

476

Área Cubierta

2054

Publicado

22 de febrero de 2019

Descripción

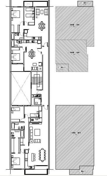
Venta lote en Liniers, Capital FederalLote propio de 8.66x55, excelente ubicación a metros de Boulevard de Av. Larrazábal. Límite con Villa Luro.VENTA CON PLANOS APROBADOS PARA INICIAR OBRA. Edificio de 7 pisos, 14 cocheras en planta baja, 3 deptos por piso, 4 ambientes al frente, 2 y 3 ambientes al...

Características

Apto profesionalAccesible para personas con movilidad reducidaCon garantiaApto creditoIdeal para renovacion

Ubicación

Planos

Plano 1
Plano 2
Plano 3
Plano 4
Plano 5

Análisis de mercado

Información del agente

Florencio GONZALEZ Inmuebles

Florencio GONZALEZ Inmuebles

¿Sos de esta inmobiliaria?

Reclamá tu perfil gratis y conseguí más leads calificados con IA. Sin comisiones, sin límites.

Conocer más

Información sobre los datos

Los derechos de los datos de esta propiedad pertenecen a la inmobiliaria correspondiente. Roomix utiliza múltiples fuentes de portales inmobiliarios como ZonaProp, Argenprop, Mercado Libre y otros para indexar y mostrar propiedades disponibles en Argentina. Esta información se presenta únicamente con fines informativos y de búsqueda.

Propiedades cercanas

Propiedades similares