Venta Casa a Terminar Sobre Lote de 1.499 m², en Medal Pilar

Terrenos · 1 ambientes · 1499 m²

Escalada Lote / N° 1100, Medal Country Club, Pilar
USD 85.000
+ $ 80.000 expensas
En venta

Características principales de la propiedad

Tipo

Terrenos

Dormitorios

0

Baños

0

Ambientes

1

Área Total

1499

Área Cubierta

239

Publicado

23 de abril de 2024

Descripción

Venta de casa a terminar en el Medal Country Club, PilarLa casa, como se ve en las fotos, no está terminada, pero es una oportunidad ideal para aquellas personas que quieran poner su impronta, gusto y detalle. En los planos figuran los metrajes cubiertos (239m2) a terminar sobre un hermoso lote de 1...

Características

Apto profesionalCerca de transporte publicoCocheraPiletaEn barrio privadoSeguridad 24hsIdeal para renovacion

Ubicación

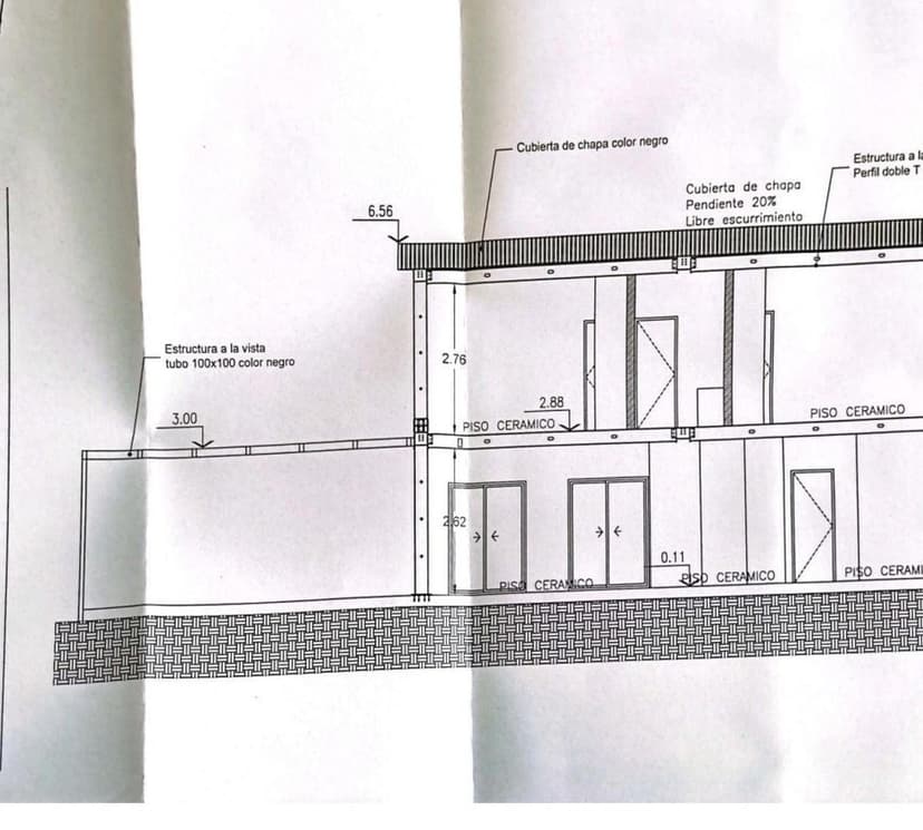
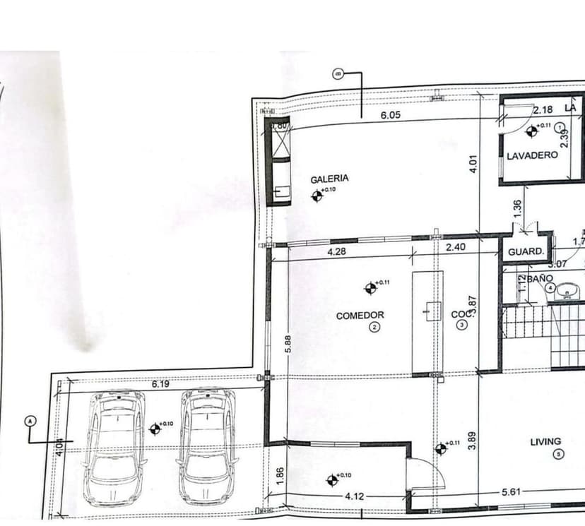
Planos

Plano 1
Plano 2
Plano 3
Plano 4
Plano 5
Plano 6
Plano 7

Análisis de mercado

Historial de Precios

Evolución del precio desde la publicación original

USD 85.000
Precio actual
Esta propiedad bajó un 22.7% su precio desde que se publicó
23 abr - 25 sept
USD -25.000(-22.7%)
Precio Original
USD 110.000
Precio Actual
USD 85.000
Cambios de Precio
2

Información del agente

I

Inmobiliaria

¿Sos de esta inmobiliaria?

Reclamá tu perfil gratis y conseguí más leads calificados con IA. Sin comisiones, sin límites.

Conocer más

Información sobre los datos

Los derechos de los datos de esta propiedad pertenecen a la inmobiliaria correspondiente. Roomix utiliza múltiples fuentes de portales inmobiliarios como ZonaProp, Argenprop, Mercado Libre y otros para indexar y mostrar propiedades disponibles en Argentina. Esta información se presenta únicamente con fines informativos y de búsqueda.

Propiedades cercanas

Propiedades similares