Quinta Seccion

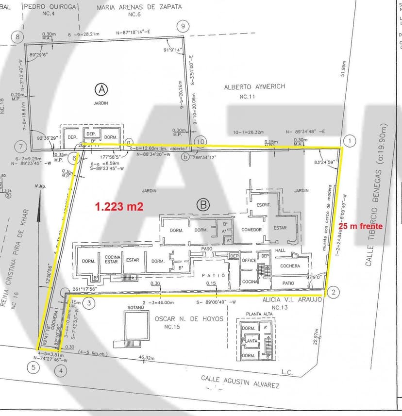
Terrenos · 1 ambientes · 1223 m²

TIBURCIO BENEGAS, Quinta Sección, Ciudad de Mendoza
USD 650.000
0
En venta

Características principales de la propiedad

Tipo

Terrenos

Dormitorios

0

Baños

0

Ambientes

1

Área Total

1223

Área Cubierta

500

Antigüedad

2 años

Publicado

6 de julio de 2024

Descripción

EXTRAORDINARIO TERRENO DE 1.223 M2 EN PLENO CORAZON DE LA QUINTA SECCION A UNA CUADRA DE EMILIO CIVIT Y A UNA CUADRA DE CALLE BELGRANO. CUENTA CON UN EXCEPCIONAL FRENTE SOBRE CALLE TIBURCIO BENEGAS DE 25 M2 Y CON SALIDA A CALLE AGUSTIN ALVAREZ

Ubicación

Planos

Plano 1

Análisis de mercado

Información del agente

I

Inmobiliaria

¿Sos de esta inmobiliaria?

Reclamá tu perfil gratis y conseguí más leads calificados con IA. Sin comisiones, sin límites.

Conocer más

Información sobre los datos

Los derechos de los datos de esta propiedad pertenecen a la inmobiliaria correspondiente. Roomix utiliza múltiples fuentes de portales inmobiliarios como ZonaProp, Argenprop, Mercado Libre y otros para indexar y mostrar propiedades disponibles en Argentina. Esta información se presenta únicamente con fines informativos y de búsqueda.

Propiedades cercanas

Propiedades similares