Terreno - Las Marías

Terrenos · 1 ambientes · 1000 m²

Lote P/hacer 8 UF, San Carlos de Bariloche, Rio Negro
USD 170.000
0
En venta

Características principales de la propiedad

Tipo

Terrenos

Dormitorios

0

Baños

0

Ambientes

1

Área Total

1000

Publicado

4 de junio de 2024

Descripción

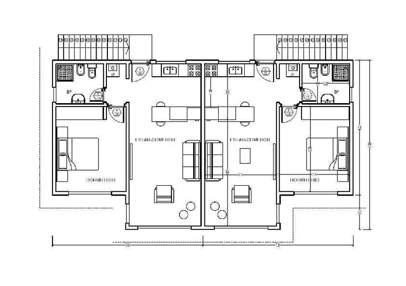
Excelente lote en barrio Las Marías, con proyecto aprobado para realizar 8 departamentos.Se trata de una oportunidad ideal para quien busca construir y hacer negocio, ya sea para la venta de unidades funcionales o bien obtener una renta mensual/turística.EL TERRENOPosee 1.000m2 (20x50)Originalmente...

Características

Ideal para alquilerPapeles al dia

Ubicación

Planos

Plano 1
Plano 2

Análisis de mercado

Información del agente

I

Inmobiliaria

¿Sos de esta inmobiliaria?

Reclamá tu perfil gratis y conseguí más leads calificados con IA. Sin comisiones, sin límites.

Conocer más

Información sobre los datos

Los derechos de los datos de esta propiedad pertenecen a la inmobiliaria correspondiente. Roomix utiliza múltiples fuentes de portales inmobiliarios como ZonaProp, Argenprop, Mercado Libre y otros para indexar y mostrar propiedades disponibles en Argentina. Esta información se presenta únicamente con fines informativos y de búsqueda.

Propiedades cercanas

Propiedades similares