Terreno - Las Cañitas

Terrenos · 1 ambientes · 572 m²

Melincue 3200 Entre Cuenca y Campana, Caba, Villa del Parque, Capital Federal
USD 2.000.000
0
En venta

Características principales de la propiedad

Tipo

Terrenos

Dormitorios

0

Baños

0

Ambientes

1

Área Total

572

Publicado

6 de noviembre de 2024

Descripción

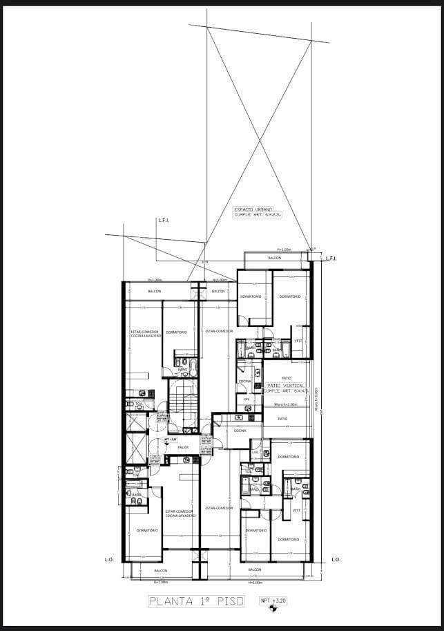
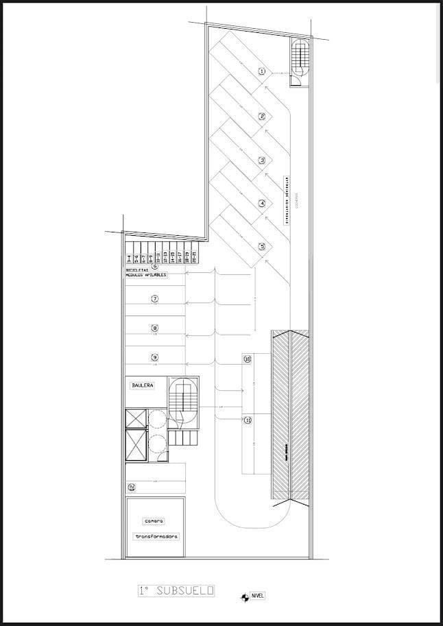
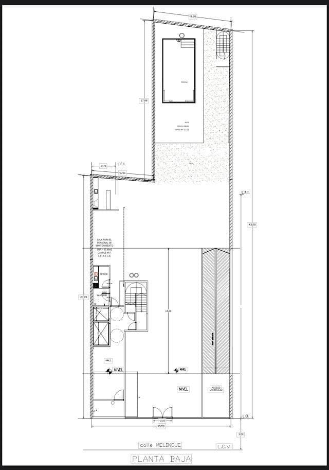
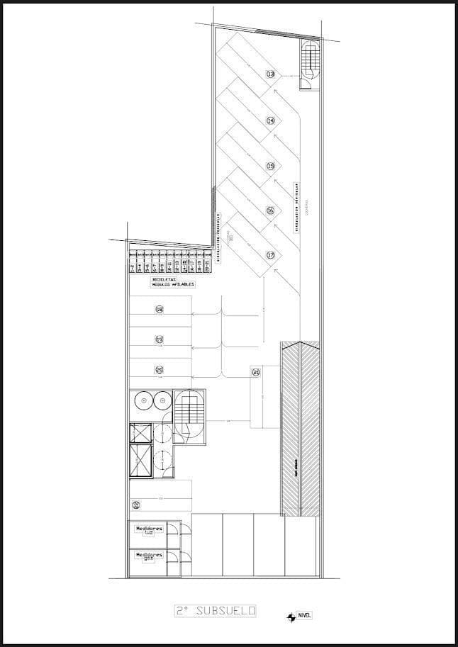
Inmejorable ubicacion VILLA DEL PARQUEEN ADYACENCIA DEL SHOPING Y ESTACION DE VILLA DEL PARQUETERRENO EN VENTA - PLANOS APROBADOSPLUSVALIA Y DERECHOS DE CONSTRUCCION PAGOS15,59 X 36,69MTSPLANOS APROBADOS P.B. Y 9 PISOS 2.403M2 CUBIERTOS 372M2 SEMICUBIERTOS 158M2 DESCUBIERTOs 25 COCHERAS LOCA...

Características

Cerca de transporte publicoCon expensasApto creditoCochera

Ubicación

Planos

Plano 1
Plano 2
Plano 3
Plano 4
Plano 5
Plano 6
Plano 7
Plano 8

Análisis de mercado

Información del agente

I

Inmobiliaria

¿Sos de esta inmobiliaria?

Reclamá tu perfil gratis y conseguí más leads calificados con IA. Sin comisiones, sin límites.

Conocer más

Información sobre los datos

Los derechos de los datos de esta propiedad pertenecen a la inmobiliaria correspondiente. Roomix utiliza múltiples fuentes de portales inmobiliarios como ZonaProp, Argenprop, Mercado Libre y otros para indexar y mostrar propiedades disponibles en Argentina. Esta información se presenta únicamente con fines informativos y de búsqueda.

Propiedades cercanas

Propiedades similares