Venta Monoambiente Boedo Balcon Parrilla en Pozo

Apartamento · 1 ambientes · 1 baños · 34 m²

Castro Barros 973 1, Boedo, Capital Federal
USD 93.200
0
En venta

Características principales de la propiedad

Tipo

Apartamento

Dormitorios

0

Baños

1

Ambientes

1

Área Total

34

Área Cubierta

33

Publicado

11 de febrero de 2025

Descripción

VENTA DE DEPARTAMENTO MONOAMBIENTE BOEDO CON BALCON EN POZO (OBRA) VENTA POR SISTEMA DE INTEGRACION A FIDEICOMISOFECHA DE FINALIZACION: JULIO 2025!EXCELENTE UBICACION, A POCOS METROS DE AV. SAN JUAN, DE AV. INDEPENDENCIA Y DE AV. BOEDO.Amplio Monoambiente en 1° Piso al Contrafrente con Balcón profun...

Características

BalconCocheraCerca de transporte publicoAccesible para personas con movilidad reducidaIdeal para alquiler

Ubicación

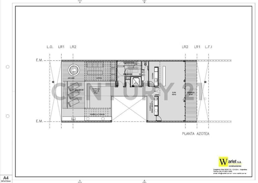
Planos

Plano 1
Plano 2

Análisis de mercado

Historial de Precios

Evolución del precio desde la publicación original

USD 93.200
Precio actual
Esta propiedad subió un 22.8% su precio desde que se publicó
11 feb - 25 sept
+USD 17.300(+22.8%)
Precio Original
USD 75.900
Precio Actual
USD 93.200
Cambios de Precio
2

Información del agente

I

Inmobiliaria

¿Sos de esta inmobiliaria?

Reclamá tu perfil gratis y conseguí más leads calificados con IA. Sin comisiones, sin límites.

Conocer más

Información sobre los datos

Los derechos de los datos de esta propiedad pertenecen a la inmobiliaria correspondiente. Roomix utiliza múltiples fuentes de portales inmobiliarios como ZonaProp, Argenprop, Mercado Libre y otros para indexar y mostrar propiedades disponibles en Argentina. Esta información se presenta únicamente con fines informativos y de búsqueda.

Propiedades cercanas

Propiedades similares