Monoambente, Ideal Inversión y Ubicación! Caballito, Caba

Apartamento · 1 ambientes · 39 m²

SENILLOSA 685 2 202, Caballito Sur, Caballito
USD 105.300
0
En venta

Características principales de la propiedad

Tipo

Apartamento

Dormitorios

0

Baños

0

Ambientes

1

Área Total

39

Área Cubierta

33

Publicado

12 de febrero de 2025

Descripción

OPORTUNIDAD de departamento monoambiente ambientes en POZO en venta Caballito, CABAExcelente ubicación con desarrollos en los alrededoresEMPRENDIMIENTO SENILLOSA SENIORPiso 2 departamento 202Departamento al frenteUbicado a metros de la Av. Pedro Goyena , a...

Características

Cerca de transporte publicoVista al frente

Ubicación

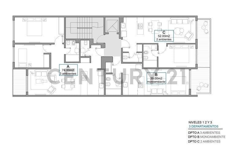
Planos

Plano 1
Plano 2
Plano 3

Análisis de mercado

Información del agente

I

Inmobiliaria

¿Sos de esta inmobiliaria?

Reclamá tu perfil gratis y conseguí más leads calificados con IA. Sin comisiones, sin límites.

Conocer más

Información sobre los datos

Los derechos de los datos de esta propiedad pertenecen a la inmobiliaria correspondiente. Roomix utiliza múltiples fuentes de portales inmobiliarios como ZonaProp, Argenprop, Mercado Libre y otros para indexar y mostrar propiedades disponibles en Argentina. Esta información se presenta únicamente con fines informativos y de búsqueda.

Propiedades cercanas

Propiedades similares