Departamento en Chacarita

Apartamento · 1 ambientes · 1 baños · 45 m²

Ravignani al 1200, Chacarita, Capital Federal
USD 144.000
0
En venta

Características principales de la propiedad

Tipo

Apartamento

Dormitorios

0

Baños

1

Ambientes

1

Área Total

45

Área Cubierta

42

Publicado

4 de marzo de 2025

Descripción

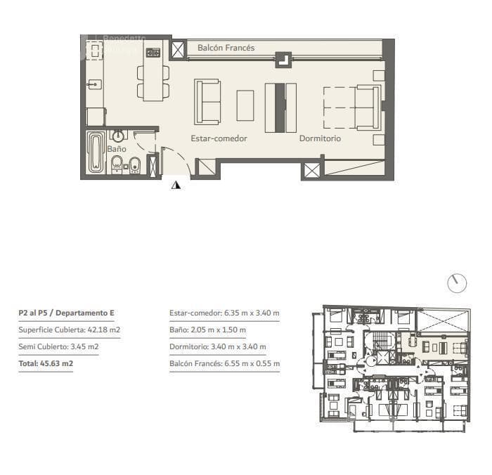
VENTA DEPARTAMENTO MONOAMBIENTE EN CHACARITA, UBICADO EN TERCER PISO AL CONTRAFRENTE, SUPERFICIE TOTAL 45.5 m2, ORIENTACION NORTE.SE INGRESA POR COCINA SEMI-INTEGRADA, MOBILIARIO COMPLETO DE ALTO Y BAJO MESADA, CONEXIÓN PARA LAVARROPAS Y AGUA CALIENTE CENTRAL. PLACARD EMPOTRADO. LUEGO EL LIVING COM...

Características

Apto profesionalOrientacion norteCerca de transporte publicoGimnasioCocheraAccesible para personas con movilidad reducidaCon expensas

Ubicación

Planos

Plano 1
Plano 2

Análisis de mercado

Información del agente

I

Inmobiliaria

¿Sos de esta inmobiliaria?

Reclamá tu perfil gratis y conseguí más leads calificados con IA. Sin comisiones, sin límites.

Conocer más

Información sobre los datos

Los derechos de los datos de esta propiedad pertenecen a la inmobiliaria correspondiente. Roomix utiliza múltiples fuentes de portales inmobiliarios como ZonaProp, Argenprop, Mercado Libre y otros para indexar y mostrar propiedades disponibles en Argentina. Esta información se presenta únicamente con fines informativos y de búsqueda.

Propiedades cercanas

Propiedades similares