VENTA DE LOCAL COMERCIAL MOSERRAT

Apartamento · 1 ambientes · 2 baños · 102 m²

Chacabuco al 100, Monserrat, Capital Federal
USD 350.000
En venta

Características principales de la propiedad

Tipo

Apartamento

Dormitorios

0

Baños

2

Ambientes

1

Área Total

102

Área Cubierta

102

Antigüedad

0 años

Publicado

16 de septiembre de 2025

Descripción

VENTA DE LOCAL: Entrega estimada: Abril 2026 Este local en planta baja ofrece una excelente oportunidad para invertir en una zona con creciente proyeccion comercial y residencial. Paseo Chacabuco se encuentra en una de las zonas más icónicas de Buenos Aires: El Casco Histórico. Vivir aquí es vivir...

Características

Vista al frenteOrientacion norteLaundryLavaderoAscensorCocheraApto creditoDueño directoCerca de transporte publico

Ubicación

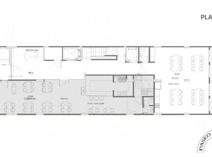
Planos

Plano 1

Análisis de mercado

Historial de Precios

Evolución del precio desde la publicación original

USD 350.000
Precio actual
Esta propiedad bajó un 16.7% su precio desde que se publicó
16 sept - 24 sept
USD -70.000(-16.7%)
Precio Original
USD 420.000
Precio Actual
USD 350.000
Cambios de Precio
2

Información del agente

Allo Nerina

Allo Nerina

¿Sos de esta inmobiliaria?

Reclamá tu perfil gratis y conseguí más leads calificados con IA. Sin comisiones, sin límites.

Conocer más

Información sobre los datos

Los derechos de los datos de esta propiedad pertenecen a la inmobiliaria correspondiente. Roomix utiliza múltiples fuentes de portales inmobiliarios como ZonaProp, Argenprop, Mercado Libre y otros para indexar y mostrar propiedades disponibles en Argentina. Esta información se presenta únicamente con fines informativos y de búsqueda.

Propiedades cercanas

Propiedades similares