Mono apto prof Premium proyectado para RentaTemporaria 10-27

Apartamento · 1 ambientes · 1 baños · 43 m²

Sinclair 2900 606°, Palermo, Capital Federal
USD 198.900
En venta

Características principales de la propiedad

Tipo

Apartamento

Dormitorios

0

Baños

1

Ambientes

1

Área Total

43

Área Cubierta

35

Antigüedad

0 años

Publicado

16 de septiembre de 2025

Descripción

Sinclair 2939. Palermo Nuevo. CABA ENTREGA 10 -2027 OBRA INICIADA Monoambiente con balcon al contrafrente Unidad 06 total 43,12 Superficie 35,00 m2 Balcones y terrazas 4,10 m2 Amenities 3,91 m Edificio de viviendas residenciales apto profesional Premium proyectadas para Renta Temporaria. Amenit...

Características

Apto profesionalVista al contrafrenteCalefaccionPiletaSolariumSUMCocheraApto creditoA estrenarReciclado

Ubicación

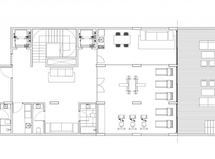
Planos

Plano 1
Plano 2
Plano 3
Plano 4

Análisis de mercado

Información del agente

LA CAPITANA REAL ESTATE

LA CAPITANA REAL ESTATE

¿Sos de esta inmobiliaria?

Reclamá tu perfil gratis y conseguí más leads calificados con IA. Sin comisiones, sin límites.

Conocer más

Información sobre los datos

Los derechos de los datos de esta propiedad pertenecen a la inmobiliaria correspondiente. Roomix utiliza múltiples fuentes de portales inmobiliarios como ZonaProp, Argenprop, Mercado Libre y otros para indexar y mostrar propiedades disponibles en Argentina. Esta información se presenta únicamente con fines informativos y de búsqueda.

Propiedades cercanas

Propiedades similares