Venta Monoambiente a Estrenar 2027 Emprendimiento Palermo Solarium Piscina Hotel

Apartamento · 1 ambientes · 1 dormitorios · 1 baños · 35 m²

Godoy Cruz al 2600, Palermo, Capital Federal
USD 89.000
0
En venta

Características principales de la propiedad

Tipo

Apartamento

Dormitorios

1

Baños

1

Ambientes

1

Área Total

35

Área Cubierta

32

Publicado

22 de marzo de 2025

Descripción

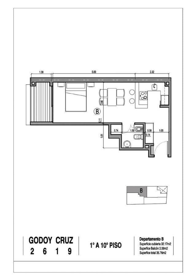
*ATENCIÓN: CONSULTAR POR OTROS DEPARTAMENTOS de 1 y 2 ambientes en el mismo EMPRENDIMIENTO INMOBILIARIOFECHA DE ENTREGA MEDIADOS DE 2027!!!!!El precio de publicacion corresponde a la unidad funcional 2 emplazada en el piso 1ro e identificada bajo la letra B. (consultar por otras unidades)MONOAMBIENT...

Características

Cerca de transporte publicoOrientacion norteIdeal para alquilerAccesible para personas con movilidad reducidaVista al frente

Ubicación

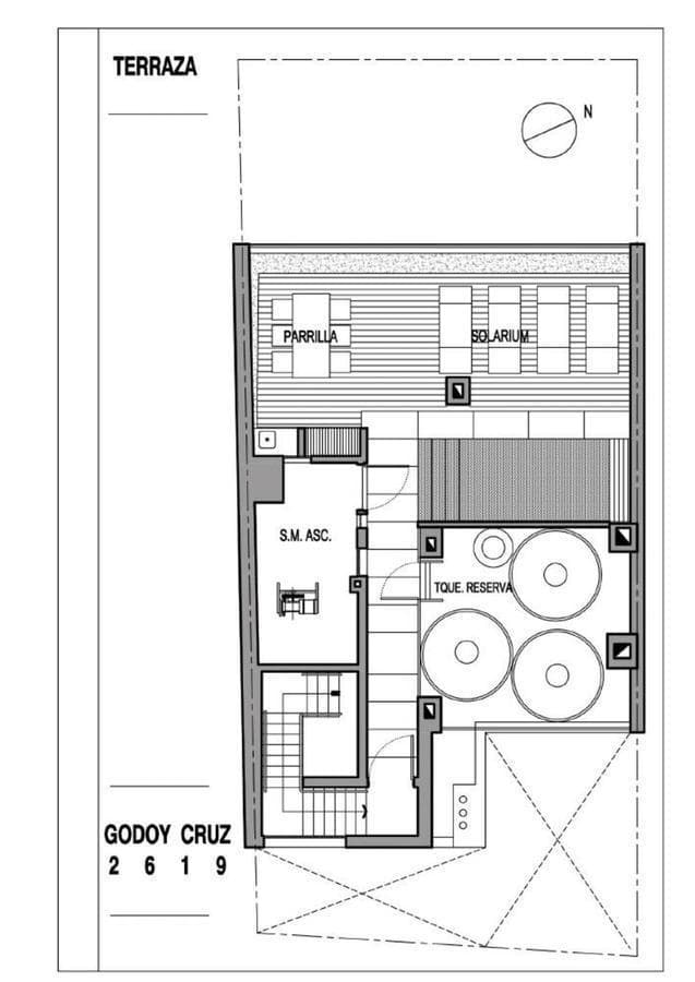
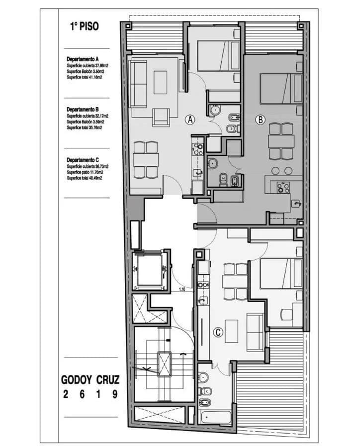
Planos

Plano 1
Plano 2
Plano 3
Plano 4
Plano 5

Análisis de mercado

Información del agente

I

Inmobiliaria

¿Sos de esta inmobiliaria?

Reclamá tu perfil gratis y conseguí más leads calificados con IA. Sin comisiones, sin límites.

Conocer más

Información sobre los datos

Los derechos de los datos de esta propiedad pertenecen a la inmobiliaria correspondiente. Roomix utiliza múltiples fuentes de portales inmobiliarios como ZonaProp, Argenprop, Mercado Libre y otros para indexar y mostrar propiedades disponibles en Argentina. Esta información se presenta únicamente con fines informativos y de búsqueda.

Propiedades cercanas

Propiedades similares