Departamento - Venta - 2 Ambientes - Barracas

Apartamento · 2 ambientes · 1 dormitorios · 1 baños · 49 m²

Av. Suarez al 2800, Barracas, Capital Federal
USD 96.572
0
En venta

Características principales de la propiedad

Tipo

Apartamento

Dormitorios

1

Baños

1

Ambientes

2

Área Total

49

Área Cubierta

44

Publicado

24 de febrero de 2025

Descripción

FECHA DE POSESIÓN APROX: DICIEMBRE 2025 Edificio de categoría con Amenities, ubicado sobre la Avenida Vélez Sarsfield, esquina Suarez con cocheras y locales comerciales.Departamentos de 2 y 3 ambientes con balcón o patio.El edificio contará con SUM, Solarium con zona hídrica, Gimnasio y E...

Características

BalconSUMSolariumGimnasioEspacio coworking

Ubicación

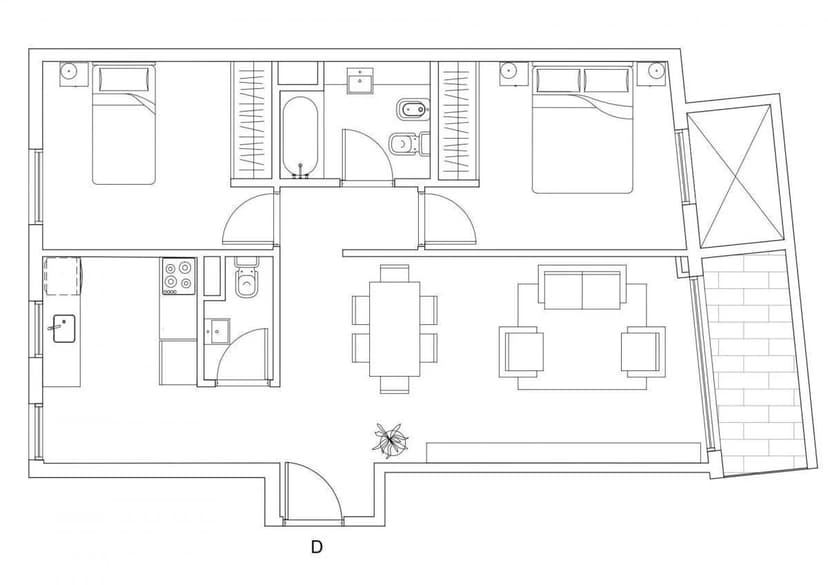
Planos

Plano 1
Plano 2

Análisis de mercado

Información del agente

I

Inmobiliaria

¿Sos de esta inmobiliaria?

Reclamá tu perfil gratis y conseguí más leads calificados con IA. Sin comisiones, sin límites.

Conocer más

Información sobre los datos

Los derechos de los datos de esta propiedad pertenecen a la inmobiliaria correspondiente. Roomix utiliza múltiples fuentes de portales inmobiliarios como ZonaProp, Argenprop, Mercado Libre y otros para indexar y mostrar propiedades disponibles en Argentina. Esta información se presenta únicamente con fines informativos y de búsqueda.

Propiedades cercanas

Propiedades similares