Departamento 2 Ambientes a Estrenar

Apartamento · 2 ambientes · 1 dormitorios · 1 baños · 73 m²

Avenida Montes de Oca 1000, Barracas, Capital Federal
USD 152.000
0
En venta

Características principales de la propiedad

Tipo

Apartamento

Dormitorios

1

Baños

1

Ambientes

2

Área Total

73

Área Cubierta

64

Publicado

23 de julio de 2021

Descripción

Las unidades cuentan con: ambiente de cocina y comedor diario con pisos de cerámica o porcelanatto de primera calidad, muebles de bajo mesada y alacena con mesada de granito o similar, anafes eléctricos, pileta de acero inoxidable marca Johnson, grifería monocomando FV, entre la mesada y alacena par...

Características

Con expensasCocheraBalcon

Ubicación

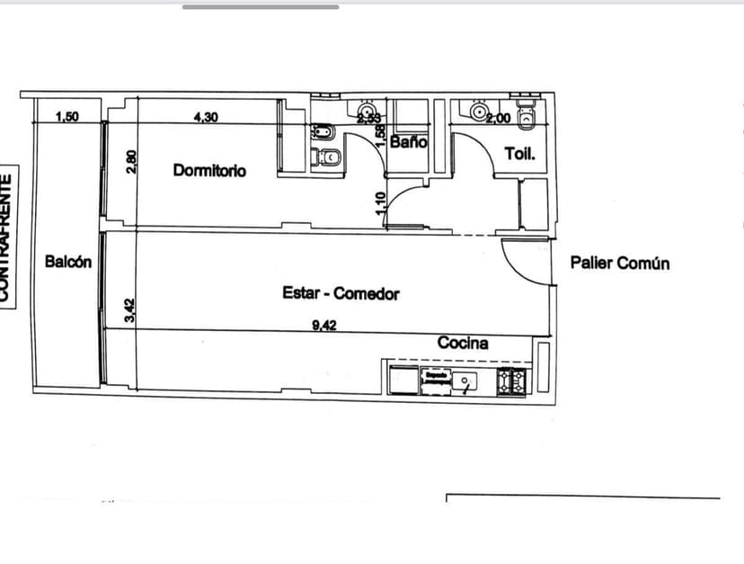
Planos

Plano 1
Plano 2
Plano 3
Plano 4
Plano 5
Plano 6

Análisis de mercado

Información del agente

I

Inmobiliaria

¿Sos de esta inmobiliaria?

Reclamá tu perfil gratis y conseguí más leads calificados con IA. Sin comisiones, sin límites.

Conocer más

Información sobre los datos

Los derechos de los datos de esta propiedad pertenecen a la inmobiliaria correspondiente. Roomix utiliza múltiples fuentes de portales inmobiliarios como ZonaProp, Argenprop, Mercado Libre y otros para indexar y mostrar propiedades disponibles en Argentina. Esta información se presenta únicamente con fines informativos y de búsqueda.

Propiedades cercanas

Propiedades similares