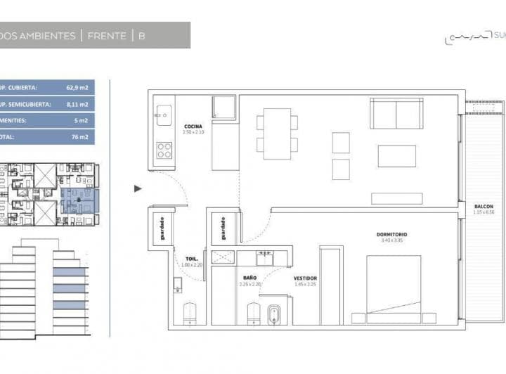
Departamento en venta de 2 aambientes con balcón, Belgrano

Apartamento · 2 ambientes · 1 dormitorios · 1 baños · 71 m²

Sucre al 1500, Belgrano, Capital Federal
USD 285.005
En venta

Características principales de la propiedad

Tipo

Apartamento

Dormitorios

1

Baños

1

Ambientes

2

Área Total

71

Área Cubierta

62

Antigüedad

0 años

Publicado

5 de julio de 2025

Descripción

CASA SUCRE - Departamento de 2 ambientes al frente, en venta en Belgrano C (Sucre 1500) ESTADO DE OBRA: EN CONSTRUCCION - ENTREGA ESTIMADA: NOVIEMBRE 2027 Proyecto y Dirección: Larroca Mendizábal Arquitectos LO QUE NECESITAS PARA TU VIDA URBANA EN TU CASA UBICACION ESTRATEGICA Ubicado en el barr...

Características

Vista al frenteOrientacion surAire acondicionadoGimnasioSolariumSUMSeguridad 24hsBalconCocinaDormitorio en suiteLivingVestidorEncargado VigilanciaAscensorCocheraApto creditoEn barrio privadoCerca de transporte publicoPapeles al dia

Ubicación

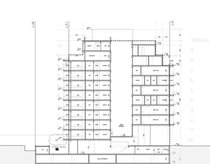
Planos

Plano 1
Plano 2

Análisis de mercado

Información del agente

Central Real Estate Argentina

Central Real Estate Argentina

¿Sos de esta inmobiliaria?

Reclamá tu perfil gratis y conseguí más leads calificados con IA. Sin comisiones, sin límites.

Conocer más

Información sobre los datos

Los derechos de los datos de esta propiedad pertenecen a la inmobiliaria correspondiente. Roomix utiliza múltiples fuentes de portales inmobiliarios como ZonaProp, Argenprop, Mercado Libre y otros para indexar y mostrar propiedades disponibles en Argentina. Esta información se presenta únicamente con fines informativos y de búsqueda.

Propiedades cercanas

Propiedades similares