Departamento con Gran Potencial, Caballito, Caba

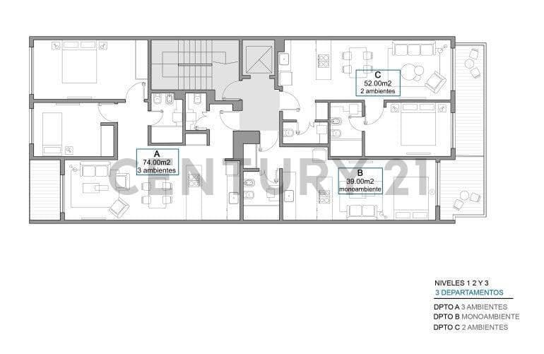
Apartamento · 2 ambientes · 1 dormitorios · 52 m²

SENILLOSA 685 2 203, Caballito Sur, Caballito
USD 142.830
0
En venta

Características principales de la propiedad

Tipo

Apartamento

Dormitorios

1

Baños

0

Ambientes

2

Área Total

52

Área Cubierta

45

Publicado

12 de febrero de 2025

Descripción

OPORTUNIDAD de departamento 2 ambientes en POZO en venta Caballito, CABAExcelente ubicación con desarrollos en los alrededoresEMPRENDIMIENTO SENILLOSA SENIORPiso 2 departamento 203Departamento al frenteUbicado a metros de la Av. Pedro Goyena , a 7 cuadras d...

Características

Cerca de transporte publicoVista al frente

Ubicación

Planos

Plano 1
Plano 2
Plano 3

Análisis de mercado

Información del agente

I

Inmobiliaria

¿Sos de esta inmobiliaria?

Reclamá tu perfil gratis y conseguí más leads calificados con IA. Sin comisiones, sin límites.

Conocer más

Información sobre los datos

Los derechos de los datos de esta propiedad pertenecen a la inmobiliaria correspondiente. Roomix utiliza múltiples fuentes de portales inmobiliarios como ZonaProp, Argenprop, Mercado Libre y otros para indexar y mostrar propiedades disponibles en Argentina. Esta información se presenta únicamente con fines informativos y de búsqueda.

Propiedades cercanas

Propiedades similares