Venta - 2 Amb de 96 m² con Terraza - Qiub - Palermo Hollywood

Apartamento · 2 ambientes · 1 dormitorios · 1 baños · 96 m²

Juan b Justo al 1500, Palermo, Capital Federal
USD 321.500
+ $ 1 expensas
En venta

Características principales de la propiedad

Tipo

Apartamento

Dormitorios

1

Baños

1

Ambientes

2

Área Total

96

Área Cubierta

61

Publicado

25 de enero de 2025

Descripción

Presentamos Qiub un complejo de usos mixtos, ubicado en el corazón de Palermo Hollywood. El proyecto ofrece una ubicación estratégica con excelentes conexiones de transporte, una vibrante escena gastronómica y cultural, amplios espacios verdes y una variedad de servicios de calida...

Características

Cerca de transporte publicoPiletaGimnasioSUMSeguridad 24hsIdeal para alquilerEn barrio privadoPapeles al dia

Ubicación

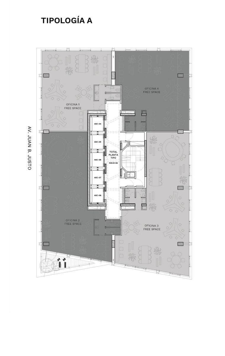
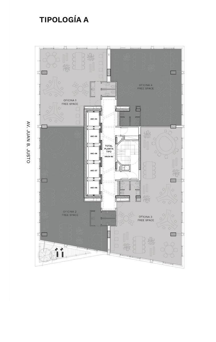
Planos

Plano 1
Plano 2

Análisis de mercado

Historial de Precios

Evolución del precio desde la publicación original

USD 321.500
Precio actual
Esta propiedad bajó un 24.2% su precio desde que se publicó
25 ene - 25 sept
USD -102.605(-24.2%)
Precio Original
USD 424.105
Precio Actual
USD 321.500
Cambios de Precio
2

Información del agente

I

Inmobiliaria

¿Sos de esta inmobiliaria?

Reclamá tu perfil gratis y conseguí más leads calificados con IA. Sin comisiones, sin límites.

Conocer más

Información sobre los datos

Los derechos de los datos de esta propiedad pertenecen a la inmobiliaria correspondiente. Roomix utiliza múltiples fuentes de portales inmobiliarios como ZonaProp, Argenprop, Mercado Libre y otros para indexar y mostrar propiedades disponibles en Argentina. Esta información se presenta únicamente con fines informativos y de búsqueda.

Propiedades cercanas

Propiedades similares