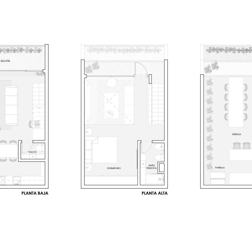
Apartamento · 2 ambientes · 1 dormitorios · 1 baños · 93 m²
Tipo
Apartamento
Dormitorios
1
Baños
1

¿Sos de esta inmobiliaria?
Reclamá tu perfil gratis y conseguí más leads calificados con IA. Sin comisiones, sin límites.
Soy el dueño de esta inmobiliaria y quiero reclamar mi perfilLos derechos de los datos de esta propiedad pertenecen a la inmobiliaria correspondiente. Roomix utiliza múltiples fuentes de portales inmobiliarios como ZonaProp, Argenprop, Mercado Libre y otros para indexar y mostrar propiedades disponibles en Argentina. Esta información se presenta únicamente con fines informativos y de búsqueda.
Ambientes
2
Área Total
93 m²
Área Cubierta
55 m²
Antigüedad
2 años
Publicado
Hace 9 meses